Moje pierwsze M, czyli jak urządzić kawalerkę
Na pytanie czytelniczki odpowiada architekt Łukasz Milewski z biura projektowego ARB+.

Pytanie
Witam serdecznie,
Zwracam się z uprzejmą prośbą o pomoc w aranżacji wnętrz mojego pierwszego mieszkania - kawalerki 30m2. Chciałabym aby było ono idealne, aby było przytulne lecz nowoczesne, aby chciało się w nim przebywać, ale relaksowało po ciężkim dniu pracy... Brakuje mi jednak pomysłów, nie mam wyobraźni przestrzennej, podobają mi się pojedyncze rzeczy, np. sofy, obrazy, ale nie potrafię wyobrazić sobie czy współgrałyby ze sobą tworząc pewną zgraną całość. Nie potrafię również zdecydować, które miejsce w mieszkaniu będzie idealne dla sofy, stołu czy telewizora, jakie rozwiązania się sprawdzą. Mieszkanie składa się z jednego pokoju, którego nie chciałabym dzielić dodatkowymi ściankami działowymi. Aranżacja jest więc tym trudniejsza, chciałabym aby poszczególne przestrzenie (aneks kuchenny, jadalny - być może przy oknie, jak i część wypoczynkowo- telewizyjna przy balkonie) były tak zaaranżowane żeby były oddzielnymi przestrzeniami ale i współgrały z sobą. Chciałabym aby znalazło się miejsce na regał dla moich wszystkich książek i miejsce do pracy. Lubię kolory ziemi, brązy, beże, słoneczne odcienie i fiolety. Podobają mi się elementy ozdobne na ścianach, nie chciałabym aby moje pierwsze mieszkanie było tylko 4 ścianami pomalowanymi na ten sam odcień. Mam nadzieję na jakieś ciekawe, nastrojowe świetlne elementy. W kuchni miejsce na niezbędne sprzęty, a w łazience koniecznie wanna bo lubię kąpiele :) Szczerze muszę przyznać, że kupno mojego pierwszego mieszkania jest dla mnie już nie lada wyzwaniem i nie mam funduszy aby opłacić profesjonalnego projektanta wnętrz stąd uprzejmie proszę o rady :) Będę niezmiernie wdzięczna!! Liczę na Waszą pomoc.
Z poważaniem,
Marta Patkowska
Odpowiedź:
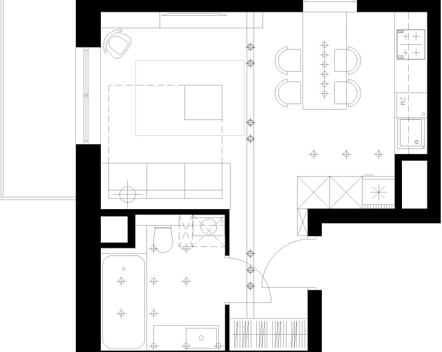
Aranżując tę kawalerkę postawiliśmy na funkcjonalność oraz kolor fioletowy, który łączy w jedną całość wszystkie pomieszczenia. Ze względu na koszty nie wprowadzamy żadnych zmian w układzie pomieszczeń, mimo iż wydaje się, że łazienka jest zbyt duża jak na kawalerkę. W kuchni proponujemy ciąg roboczy bez górnych szafek (oszczędzamy) , jedynie z półką nad blatem, oraz wysoką zabudowę z lodówką. Oprócz lodówki będzie tam dużo miejsca do przechowywania różnych rzeczy. Wykończenie ściany nad blatem szkłem w kolorze miedzianym, który ładnie się komponuje z fioletem oraz laminatem drewnianym na szafkach. Duży rozkładany stół zapewni nie tylko wygodne miejsce do organizowania spotkań ale także do pracy. Można go uzupełnić pomocnikiem na kółkach w którym zmieszczą się materiały robocze i dokumenty. Jeśli chciałaby Pani dodatkowo wydzielić kuchnię można wprowadzić gres na podłogę.
Funkcje łącznika między kuchnią a salonem pełni tapeta przedstawiająca dmuchawce. Na ścianie z tapetą rozmieściliśmy półki na książki oraz gadżety. Takie rozwiązanie jest tańsze i lżejsze niż klasyczny regał. Duża rozkładana sofa zapewni komfort w dzień i w nocy, a dodatkowe elementy takie jak pufa i mały fotel pozwolą wygodnie przyjąć gości. Lampa, która standardowo powinna stać na ziemi jest przymocowana do ściany dzięki czemu oszczędzamy cenną powierzchnię. Ściana okalająca łazienkę jest pomalowana na szaro, ale można do szarego wprowadzić odrobinę pigmentu i uzyskać zgaszony fiolet. Trzeba tylko uważać żeby nie przesadzić z ilością koloru.
W przedpokoju wnękę wypełnia szafa z lustrem oraz grafiką na fioletowym tle. Pomiędzy przedpokojem a salonem zaplanowaliśmy system oświetleniowy na linkach, który pozwoli na indywidualne kreowanie oświetlenia w zależności od okazji.
Łazienkę wykończyliśmy w białych płytkach z dodatkiem amarantowych dekorów. Białą płytkę można często spotkać w promocyjnych cenach, a zaoszczędzone pieniądze można przeznaczyć na ciekawe dekory. Duża szafka pod umywalką powinna na początku zmieścić niezbędne rzeczy a w przyszłości można zainwestować w szafę, którą zabudujemy pralkę. Wannę warto uzupełnić o szklany parawan prysznicowy.
Łukasz Milewski
ARB+
- Więcej o:
![Hotel Garamond – elegancki, butikowy obiekt w sercu Krakowa Hotel Garamond – elegancki, butikowy obiekt w sercu Krakowa]()
Hotel Garamond – elegancki, butikowy obiekt w sercu Krakowa
![Mieszkanie na kameralnym osiedlu w podwarszawskim Brwinowie Mieszkanie na kameralnym osiedlu w podwarszawskim Brwinowie]()
Mieszkanie na kameralnym osiedlu w podwarszawskim Brwinowie
![Mieszkanie, na warszawskiej Woli, które czaruje formą i kolorem Mieszkanie, na warszawskiej Woli, które czaruje formą i kolorem]()
Mieszkanie na warszawskiej Woli, które czaruje formą i kolorem
![Mieszkanie nad Zalewem Zegrzyńskim - aranżacja projektu Deer Design Mieszkanie nad Zalewem Zegrzyńskim - aranżacja projektu Deer Design]()
Mieszkanie nad Zalewem Zegrzyńskim - aranżacja projektu Deer Design
![Honorowe miejsce w salonie zajmuje obraz Andrzeja Jana Batora. Granatowe akcenty kolorystyczne na tle bieli, szarości i ciepłej barwy drewna pojawiają się niemal w każdym pomieszczeniu mieszkania. Honorowe miejsce w salonie zajmuje obraz Andrzeja Jana Batora. Granatowe akcenty kolorystyczne na tle bieli, szarości i ciepłej barwy drewna pojawiają się niemal w każdym pomieszczeniu mieszkania.]()
Kolor, forma, funkcja - mieszkanie w Ostrołęce
![W salonie zieleń sofy harmonizuje z różem abstrakcyjnego obrazu Aleksandry Szewczuk, który wkomponowano w stylizowaną sztukaterię. W salonie zieleń sofy harmonizuje z różem abstrakcyjnego obrazu Aleksandry Szewczuk, który wkomponowano w stylizowaną sztukaterię.]()
Mieszkanie w sopockiej kamienicy - projekt pracowni Biuro Kreacja
![Eleganckie połączenie nowoczesności z naturą - aranżacja projektu Auroom Concept Eleganckie połączenie nowoczesności z naturą - aranżacja projektu Auroom Concept]()
Eleganckie połączenie nowoczesności z naturą - aranżacja projektu Auroom Concept
![Apartament na Starym Mokotowie - projekt pracowni FUGA Architektura Wnętrz Apartament na Starym Mokotowie - projekt pracowni FUGA Architektura Wnętrz]()
Apartament na Starym Mokotowie - projekt pracowni FUGA Architektura Wnętrz













