Mieszkanie dla dwóch osób
Funkcjonowanie w niewielkiej przestrzeni wymaga starannie przemyślanych rozwiązań, dlatego mieszkanie przeznaczone dla dwóch osób powinno oferować wygodę, ergonomię i walory estetyczne. Aranżacja wnętrz w takim przypadku nie polega wyłącznie na dopasowaniu mebli i dodatków, lecz także na świadomym kształtowaniu układu pomieszczeń, doborze kolorów, oświetlenia i materiałów wykończeniowych. Kluczowe staje się stworzenie koncepcji, która odpowiada zarówno na potrzeby praktyczne, jak i sprzyja wypoczynkowi oraz wspólnemu spędzaniu czasu.

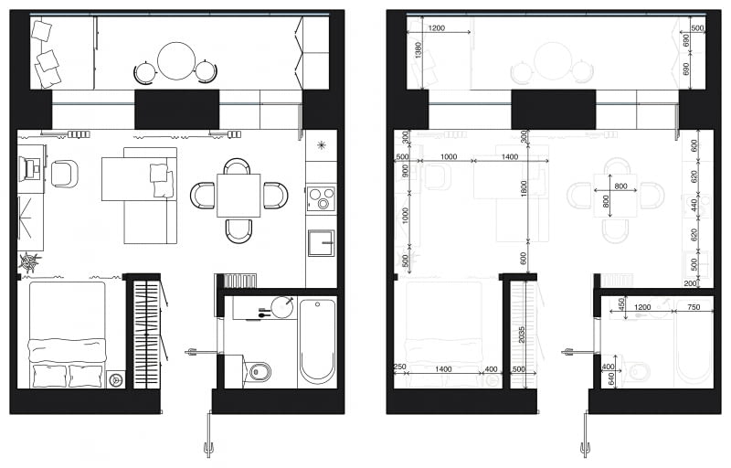
Układ mieszkania a komfort codziennego życia
Podstawą udanej aranżacji mieszkania dla dwóch osób jest jego odpowiedni układ funkcjonalny. Nawet niewielki metraż można zaplanować tak, aby zapewnić komfortową strefę dzienną, prywatną część sypialnianą oraz wydzielone miejsce do pracy, które staje się coraz częściej niezbędne w warunkach pracy zdalnej. Ważne jest też odpowiednie połączenie kuchni z salonem, które będzie sprzyjało integracji i pozwoli jak najlepiej zagospodarować przestrzeń. Otwarta strefa dzienna powinna umożliwiać zarówno wspólne przygotowywanie posiłków, jak i relaks przed telewizorem. Z kolei część prywatna, w której znajduje się sypialnia, musi gwarantować poczucie intymności i sprzyjać regeneracji.

Aranżacja strefy dziennej w mieszkaniu dla dwóch osób
Salon połączony z kuchnią i jadalnią to centrum życia codziennego. W przypadku dwóch osób istotne jest, aby przestrzeń ta była wielofunkcyjna, lecz nieprzeładowana elementami wyposażenia. Wybór sofy dwu- lub trzyosobowej oraz lekkiego stołu jadalnianego umożliwia wygodne użytkowanie pomieszczenia, a jednocześnie nie ogranicza swobody ruchu. Meble powinny mieć prostą formę, a ich rozmieszczenie musi sprzyjać komunikacji i organizacji przestrzeni. W niewielkim salonie zaleca się unikanie ciężkich, masywnych mebli, które optycznie zmniejszają wnętrze. Zamiast tego warto postawić na modułowe rozwiązania, które można w przyszłości modyfikować w zależności od potrzeb.

Kuchnia dopasowana do codziennych rytuałów
Ważne jest, aby przestrzeń była dobrze zorganizowana – wystarczająca liczba szafek i półek pozwala na utrzymanie porządku, a ergonomiczne rozplanowanie stref gotowania, zmywania i przechowywania ułatwia codzienne czynności. W przypadku niewielkich mieszkań świetnie sprawdzają się rozwiązania kompaktowe, takie jak składane lub wysuwane blaty, zabudowa do sufitu czy sprytne systemy przechowywania, które pozwalają maksymalnie wykorzystać dostępny metraż. Mały stół lub wyspa kuchenna mogą stać się centrum wspólnych posiłków, a odpowiednie oświetlenie doda wnętrzu ciepła i intymnego charakteru. Całość warto uzupełnić o detale odzwierciedlające osobowość mieszkańców – rośliny doniczkowe, kolorowe naczynia czy dekoracyjne dodatki – które sprawiają, że kuchnia staje się nie tylko praktyczna, ale i wyjątkowo przyjazna.


Sypialnia w mieszkaniu dla dwóch osób
Najważniejszym elementem jest łóżko o odpowiedniej szerokości (160 cm lub szersze), które zapewnia komfortowy sen. W niewielkich mieszkaniach dobrym rozwiązaniem jest łóżko z pojemnikiem na pościel, dzięki czemu można dodatkowo zyskać miejsce do przechowywania. Minimalistyczna zabudowa meblowa do sufitu (na ubrania) ułatwi utrzymanie porządku i jednocześnie nie przytłoczy przestrzeni. Kolorystyka sypialni powinna sprzyjać relaksowi, dlatego dobrze sprawdzają się stonowane barwy, takie jak beże, szarości czy odcienie pastelowe. Odpowiednie zasłony lub rolety zaciemniające pozwalają na komfortowy odpoczynek niezależnie od pory dnia.


Przestrzeń do pracy
Mieszkanie dla dwóch osób często wymaga wydzielenia strefy do pracy biurowej. Niezależnie od metrażu warto znaleźć kąt, w którym zmieści się niewielkie biurko oraz wygodne krzesło z opcją regulacji oparcia, wysokości czy położenia podłokietników. Jeśli brakuje miejsca na osobny gabinet, dobrym rozwiązaniem jest aranżacja stanowiska w salonie, sypialni lub nawet w przedpokoju, przy zachowaniu zasady spójności estetycznej. Dzięki temu praca zdalna staje się komfortowa, a jednocześnie nie zakłóci domowej harmonii. Osoby dzielące mieszkanie powinny także zadbać o miejsce sprzyjające rozwijaniu pasji, co wpływa korzystnie na samopoczucie i równowagę między obowiązkami a relaksem.


Łazienka zaplanowana dla dwóch osób
Łazienka w mieszkaniu dla dwóch osób powinna być zorganizowana tak, aby ułatwiała korzystanie z niej w różnych porach dnia. Jeśli metraż na to pozwala, warto rozważyć instalację dwóch umywalek, co znacznie podnosi komfort porannego przygotowania się do pracy. W przypadku niewielkiej przestrzeni dobrze sprawdzają się szafki podumywalkowe, które umożliwiają przechowywanie kosmetyków i środków czystości. Prysznic z przeszkloną kabiną zajmuje mniej miejsca niż wanna, a dodatkowo pozwala optycznie powiększyć wnętrze. W łazience istotne jest zastosowanie materiałów odpornych na wilgoć oraz dobre oświetlenie, które zwiększa wygodę codziennego użytkowania.


Kolorystyka i materiały
Dobór kolorów i materiałów odgrywa kluczową rolę w aranżacji mieszkania. Jasne barwy optycznie powiększają przestrzeń, co jest szczególnie ważne w małych lokalach. Z kolei kontrastowe akcenty pozwalają na przełamanie monotonii i nadanie wnętrzu wyrazistości. Warto sięgać po naturalne materiały, takie jak drewno, kamień czy len, które cechują się trwałością i uniwersalnym wyglądem. Przy wyborze wykończeń należy kierować się nie tylko estetyką, ale i łatwością pielęgnacji - utrzymanie porządku w mieszkaniu użytkowanym przez dwie osoby jest istotnym elementem codziennego komfortu.


Oświetlenie a funkcjonalność mieszkania
Odpowiednio zaplanowane oświetlenie pozwala kształtować atmosferę pomieszczeń i podnosi ich funkcjonalność. W mieszkaniu dla dwóch osób należy zadbać o różne źródła światła: ogólne, punktowe i dekoracyjne. Lampy sufitowe powinny równomiernie rozjaśniać przestrzeń, natomiast kinkiety czy lampki stołowe umożliwiają stworzenie kameralnej atmosfery sprzyjającej odpoczynkowi. W strefie pracy niezbędne jest oświetlenie kierunkowe, które redukuje zmęczenie wzroku. Warto wybierać rozwiązania energooszczędne, takie jak oświetlenie LED, które oprócz funkcjonalności wpływają również na obniżenie kosztów eksploatacji.


Organizacja przechowywania
Szafy wnękowe, regały modułowe i łóżka z pojemnikami pomagają utrzymać ład i wykorzystać każdy fragment powierzchni. Przechowywanie powinno być przemyślane tak, aby przedmioty codziennego użytku były łatwo dostępne, a rzeczy rzadziej używane mogły być ukryte w mniej eksponowanych miejscach. Zabudowa meblowa wykonana na wymiar pozwala na optymalne zagospodarowanie wnętrza, zwłaszcza w lokalach o nietypowym układzie ścian.


Aranżacja mieszkania dla dwóch osób wymaga uwzględnienia wielu aspektów, od funkcjonalnego układu pomieszczeń, przez dobór mebli, kolorów i materiałów, po odpowiednie oświetlenie i rozwiązania przechowywania. Kluczowe jest stworzenie przestrzeni, która harmonijnie łączy potrzeby mieszkańców, zapewnia wygodę i sprzyja wspólnemu spędzaniu czasu, a jednocześnie pozostawia miejsce na prywatność. Przemyślana koncepcja aranżacyjna pozwala przekształcić nawet niewielkie mieszkanie w komfortowe i estetyczne, odpowiadające wymaganiom codziennego życia.

- Więcej o:
![Kolor kaszmirowy w aranżacji wnętrz Kolor kaszmirowy w aranżacji wnętrz]()
Kolor kaszmirowy w aranżacji wnętrz
![Półki na książki. Półki na książki.]()
Jak wybrać półkę na książki?
![Trudne mieszkanie ze skosami – jak je urządzić? Trudne mieszkanie ze skosami – jak je urządzić?]()
Trudne mieszkanie ze skosami – jak je urządzić?
![Biały kolor we wnętrzach – ponadczasowa baza dla aranżacji Biały kolor we wnętrzach – ponadczasowa baza dla aranżacji]()
Biały kolor we wnętrzach
![QUICK-STEP QUICK-STEP]()
Jaką podłogę wybrać? Przewodnik po parkietach, panelach i płytkach
![Nowoczesne drzwi w aranżacji wnętrza Nowoczesne drzwi w aranżacji wnętrza]()
Nowoczesne drzwi w aranżacji wnętrza
![Górska chata - inspiracje w aranżacji wnętrz Górska chata - inspiracje w aranżacji wnętrz]()
Górska chata - inspiracje w aranżacji wnętrz
![1. Lustre Arrangement - Emerald / https://www.photowall.pl/ 1. Lustre Arrangement - Emerald / https://www.photowall.pl/]()
Fototapeta na suficie









