Jak urządzić pokój dla sportowca i księżniczki?
Na pytanie czytelników odpowiadają architektki Marta Drzymała i Agata Abramczuk z pracowni MADAMA.

Pytanie
Droga Redakcjo,
mamy dwoje dzieci, 8-letniego Filipa - pierwszoklasistę, który trenuje piłkę ręczną oraz nożną i uwielbia biegać oraz 6 - letnią Anię uczęszczającą do zerówki, która uwielbia zarówno przebierać się za księżniczkę, jak i bawić się lalkami. Dzieci dzielą pokój, który urządziliśmy im 7 lat temu. Nadszedł jednak czas, aby stworzyć dzieciom miejsce do nauki, zabawy oraz aktywnego spędzania czasu. Myślimy o tym, aby urządzić każdemu przestrzeń wg ich zainteresowań. Planujemy zrobić podwieszany sufit, aby było dużo światła, oraz: w części Filipa na wprost wejścia postawić szafę w zabudowie, biurko, łóżko (mamy100x200) i jeśli będzie możliwe - wytapetować lub pomalować na ścianie kształt bramki do piłki ręcznej (do codziennego grania) oraz ustawić/powiesić telewizor. W części Ani - po prawej strony od wejścia chcielibyśmy wymienić drzwi od szafy, umieścić łóżko (mamy 90x200), biurko, regał na zabawki oraz dywanik do zabawy. Myślimy, aby na tę chwilę nie dzielić pokoju na stałe ścianą, ale może czymś ruchomym, dzieci lubią się wspólnie bawić i potrzebują przestrzeni do gry w piłkę ale na czas nauki potrzebne jest dla każdego z nich spokojne miejsce. Prosimy o pomoc w aranżacji tej dziecięcej przestrzeni. Jesteśmy otwarci na różne propozycje.
Pozdrawiamy serdecznie,
Edyta i Krzysztof
Odpowiedź
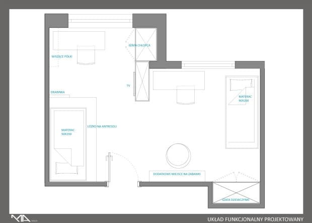
Podział wykładziny idzie w parze z podziałem stref tego pokoju. U chłopca łóżko na antresoli. Pod antresolą miejsce na bramkę do gry w piłkę. W miejscu tym również można położyć się wygodnie na pufie i oglądać telewizję.
Strefa chłopca grającego w piłkę to typowo " chłopięca strefa " . Utrzymana jest w szarościach , bielach z dodatkami zieleni oraz błękitu. Na suficie fototapeta z motywem boiska piłkarskiego będzie potęgować sny chłopca o sukcesach sportowych.
Regał oddzielający dwie strefy chłopca od dziewczynki jest dostępny z jednej jak i drugiej strony. W miejscu powieszonego TV w strefie chłopca u dziewczynki jest miejsce na książki.
Strefa dziewczynki to już zupełny inny świat. Rodem z bajki o księżniczce. Na suficie fototapeta z motywem nieba. Szafa wnękowa w neutralnych kolorach sprawdzi się tym pokoju nawet jak dzieci dorosną.
Marta Drzymała, Agata Abramczuk
MADAMA
- Więcej o:
![Mieszkanie w stylu Carrie Brashaw porady architektów, jak urządzić mieszkanie, wizualizacje]()
Jak urządzić mieszkanie w stylu Carrie Bradshaw?
![33m2 i stan deweloperski. Klinet - singielka z ukochanym psem. Najważniejszym zagadnieniem projektowym dla tego mieszkania było podzielnie jego przestrzeni. Stworzenie z jednopokojowego mieszkania dwupokojowego. Zaprojektowanie strefy kuchni i salonu tak żeby wydzielić strefą sypialni. Zabieg ten się udał dzięki przeniesieniu aneksu kuchennego. Projekt mieszkania 33m2, Studio Madama]()
Kawalerka dla singla z psem
![Galeria Wnetrz DOMAR Galeria Wnetrz DOMAR]()
Nieustawna sypialnia – jak sobie z nią poradzić?
![Fototapeta Egzotyczne Zwierzątka Wśród Kwiatów Fototapeta Egzotyczne Zwierzątka Wśród Kwiatów]()
Baśniowa kraina w dziecięcej sypialni
![Design z myślą o dzieciach Design z myślą o dzieciach]()
Design z myślą o dzieciach
![Biurko Concept – uniwersalne i minimalistyczne, doskonale wpisuje się w nowoczesne wnętrza. Solidne nogi z litego drewna zapewnią stabilność. Przestronny blat sprawdzi się podczas nauki i zabawy, a szuflady pomogą utrzymać porządek. Do biurka można dobrać dedykowany kontenerek, który będzie idealnym uzupełnieniem i dodatkową przestrzenią do przechowywania przedmiotów. Biurko Concept – uniwersalne i minimalistyczne, doskonale wpisuje się w nowoczesne wnętrza. Solidne nogi z litego drewna zapewnią stabilność. Przestronny blat sprawdzi się podczas nauki i zabawy, a szuflady pomogą utrzymać porządek. Do biurka można dobrać dedykowany kontenerek, który będzie idealnym uzupełnieniem i dodatkową przestrzenią do przechowywania przedmiotów.]()
Biurko do pokoju ucznia – jak wybrać najlepsze rozwiązanie?
![Kolekcja Inkiostro Bianco InKids Kolekcja Inkiostro Bianco InKids]()
Murale do pokojów dziecięcych
![Aranżacja pokoju dla dzieci. Aranżacja pokoju dla dzieci.]()
Pokoje dzieci w różnym wieku














