Projekty domów: klasyczny, niewielki dom dla rodziny
Nieduży dom z dobrze wykorzystaną przestrzenią, doskonały zarówno na miejską, jak i podmiejską działkę. Zaprojektowany przez Marcina Michalskiego z pracowni Domena. Szacunkowy koszt netto stanu surowego zamkniętego to 190 200 zł.


Technologia
- ściany zewnętrzne: beton komórkowy 24 cm + styropian 16 cm,
- strop: gęstożebrowy Teriva, żelbetowy wylewany,
- dach: kąt nachylenia 40 stopni, dachówka ceramiczna.
Parametry domu
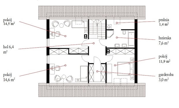
- powierzchnia użytkowa: 122,5 m2 + garaż i kotłownia 29,7 m2
- powierzchnia netto: 181,9 m2
- powierzchnia zabudowy: 124,5 m2
- kubatura netto: 454 m3
- wysokość budynku: 8,45 m
- wymiary budynku: 11,60 x 12,80 m
- minimalna szerokość działki: 18,60 m
Zapotrzebowanie na energię EP = 119,87 kWh/(m2rok)
Zobacz więcej projektów!
Projekty domów - do 100 m2, z poddaszem, na wąską działkę i wiele, wiele innych
Zapisz się na NEWSLETTER. Co tydzień najnowsze wiadomości o budowie, remoncie i wykańczaniu wnętrz w Twojej poczcie e-mail: Zobacz przykład
>- Więcej o:
- dom jednorodzinny
![Przy tym samym współczynniku przenikania ciepła U ściany zewnętrzne domów prefabrykowanych w technologii szkieletu drewnianego są o połowę cieńsze niż murowane. Daje to dodatkową korzyść - pozwala zyskać większą powierzchnię użytkową. Szacuje się, że jest to średnio 10%. domy prefabrykowane]()
Zalety domów prefabrykowanych. Jak porównywać oferty?
![Widok na elewację frontową od strony ulicy. Układ brył budynku jest konsekwencją ukształtowania terenu działki elewacja frontowa, nowoczesny dom]()
Realizacje domów: nowoczesny dom za zakrętem
![Garderoba z przesuwnymi drzwiami przy sypialni garderoba, sypialnia, szafa]()
Projektowanie domu: garderoba kontra szafa
![Z lewej: Gerrit Rietveld; Z prawej na górze: Czerwono-niebieskie krzesło ; Z prawej na dole: Dom Rietvelda w Utrechcie Z lewej: Gerrit Rietveld; Z prawej na górze: Czerwono-niebieskie krzesło ; Z prawej na dole: Dom Rietvelda w Utrechcie]()
Gerrit Rietveld. Nie tylko czerwono-niebieskie krzesło i Dom Rietvelda [ZNANI ARCHITEKCI]
![Palácio da Alvorada w Brasilii. Proj. Oscar Niemeyer Palácio da Alvorada w Brasilii. Proj. Oscar Niemeyer]()
Dom godny prezydenta. Palácio da Alvorada w Brasilii [IKONY ARCHITEKTURY]
![fot.Steven Vance,CC BY 2.0 fot.Steven Vance,CC BY 2.0]()
Kosmiczne projekty, które miały podbić Ziemię. Tak wyobrażano sobie domy przyszłości
![Willa Tugenhadtów w Brnie. Proj. Mies van der Rohe Willa Tugenhadtów w Brnie. Proj. Mies van der Rohe]()
Willa Tugendhatów w Brnie. Ekskluzywny modernizm Miesa van der Rohe [IKONY ARCHITEKTURY]
![Antilia Tower w Mubaju - największy i najdroższy dom jednorodzinny na świecie Antilia Tower w Mubaju - największy i najdroższy dom jednorodzinny na świecie]()
Najdroższy i największy dom jednorodzinny świata. Antilla Tower w Mumbaju












