Projekty domów na wieś - nasze propozycje
Dom za miastem, na dużej działce, w otoczeniu zieleni powinien być domem otwartym, w którym wnętrza przenikają się z otaczającą przyrodą. Niezależnie na jaki projekt się zdecydujemy, warto by nasz dom korespondował z okoliczną przyrodą, korzystając z uroków wsi.Takie właśnie są nasze propozycje projektów domów na wsi, które prezentujemy poniżej.


Dom na wsi - dom o oszczędnej geometrii
Dane projektu:
Projekt: Jemioła 2, parterowy
Powierzchnia użytkowa: 122,2 m2
Cena projektu: 2980 zł
Koszt netto stanu surowego zamkniętego: 163 400 zł
Autor: arch. Tomasz Sobieszuk, DOMY W STYLU
Dom nawiązuje do tradycyjnych wzorców typowych dla terenów wiejskich. Oszczędna geometria bryły na planie prostokąta z dwuspadowym dachem pozwala uzyskać efekt tzw. nowoczesnej stodoły. Projekt o przejrzystym i bardzo funkcjonalnym programie. Doskonale doświetlona część dzienna to wspólna przestrzeń salonu, jadalni i kuchni. Dzięki dużym przeszkleniom działka i otaczający krajobraz stają się integralną częścią wnętrza. Wyraźnie oddzielona strefa prywatna mieści sypialnię rodziców z własną garderobą, łazienką i wyjściem na taras oraz dwie mniejsze sypialnie i rodzinną łazienkę. Kotłownia zlokalizowana za garażem ma oddzielne wyjście do ogrodu. Jest to projekt energooszczędny z nowoczesnymi rozwiązaniami ogrzewania i wentylacji.

Parametry i konstrukcja domu
Technologia i konstrukcja
- ściany zewnętrzne: pustak ceramiczny 25 cm + styropian 20 cm,
- strop: żelbetowy, wylewany,
- dach: kąt nachylenia 40°, blacha na rąbek stojący.
Parametry domu
powierzchnia użytkowa: 122,2 m2 + garaż 21,7 m2
powierzchnia netto: 143,9 m2
powierzchnia zabudowy: 194,9 m2
kubatura: 1036 m3
wysokość budynku: 7,41 m
wymiary budynku: 20,75 x 9,35 m
minimalna szerokość działki: 26,75 m
zapotrzebowanie na energię EP = 40,85 kWh/(m2rok)

Rzut techniczny - parter
Parter 122,2 + 21,7 m2
- wiatrołap 3,0 m2
- kuchnia + jadalnia 15,5 m2
- spiżarnia 1,7 m2
- pokój dzienny 23,4 m2
- korytarz 7,7 m2
- łazienka 6,5 m2
- sypialnia 13,9 m2
- łazienka 5,2 m2
- garderoba 2,6 m2
- pokój 11,4 m2
- pokój 11,4 m2
- WC 1,4 m2
- korytarz 6,4 m2
- pom. gospodarcze 4,5 m2
- kotłownia 7,6 m2
- garaż 21,7 m2

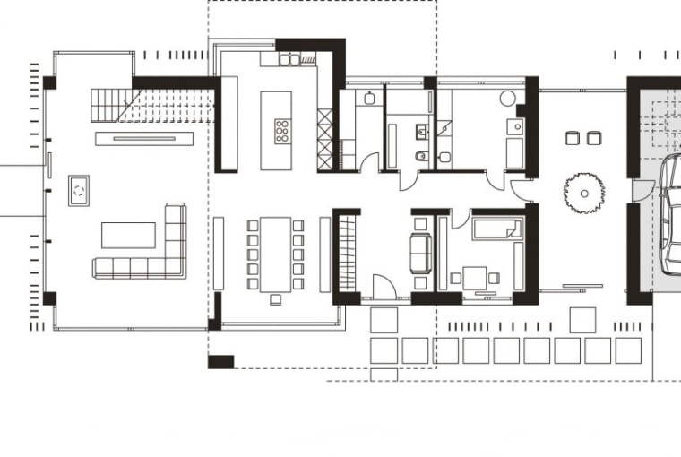
Projekt domu jednorodzinnego na wsi z wydzielonymi strefami użytkowymi
Dane projektu:
Projekt: Dunkan, parterowy
Powierzchnia użytkowa: 134,8 m2
Cena projektu: 2982 zł
Koszt netto stanu surowego zamkniętego: 234 000 zł
Autorzy: arch. Marta Zaperty-Adamek, arch. Marcin Abramowicz, DOBRE DOMY FLAK&ABRAMOWICZ
Intrygujący, niebanalny dom parterowy, wyróżniający się chłodną, stonowaną kolorystyką oraz dość nietypowym układem bryły. Budynek składa się z dwóch segmentów, połączonych strefą wejściową. Część dzienna to jedna przestrzeń z dużą kuchnią, jadalnią i salonem, rozświetlona przez duże przeszklenia, dzięki którym ogród przeniknie do wnętrza. Na uwagę zasługuje wysoki sufit nad całą strefą dzienną. W drugim segmencie zaprojektowano strefę prywatną mieszkańców. Dwa pokoje, ogólnodostępna łazienka i apartament dla rodziców (z osobną garderobą i łazienką) są przeznaczone dla rodziny 4-5-osobowej. W holu łączącym część dzienną z prywatną zaprojektowano niewielką toaletę i spiżarnię. Całość uzupełnia strefa gospodarcza z garażem i kotłownią.
Więcej propozycji projektów domów parterowych znajdziecie w artykule: Projekty domów parterowych (nasze propozycje)

Parametry i konstrukcja domu
Technologia i konstrukcja
- ściany zewnętrzne: beton komórkowy 24 cm + styropian 22 i 18 cm,
- strop: gęstożebrowy i żelbetowa płyta monolityczna,
- dach: kąt nachylenia 25°, blacha.
Parametry domu
powierzchnia użytkowa: 134,8 m2 + garaż 35,6 m2
powierzchnia netto: 175,8 m2
powierzchnia zabudowy: 215,9 m2
kubatura: 920 m3
wysokość budynku: 5,50 m
wymiary budynku: 20,84 x 17,64 m
minimalna szerokość działki: 28,84 m
Zapotrzebowanie na energię EP = 91,74 kWh/(m2rok)

Rzut techniczny - parter
Parter 134,8 + 35,6 m2
- wiatrołap 4,3 m2
- hol 16,3 m2
- pokój dzienny 28,2 m2
- kuchnia + jadalnia 26,5 m2
- spiżarnia 1,9 m2
- WC 2,0 m2
- łazienka 7,9 m2
- pokój 11,2 m2
- pokój 14,0 m2
- pokój 12,6 m2
- garderoba 2,4 m2
- łazienka 3,3 m2
- pom. gospodarcze 4,2 m2
- garaż 35,6 m2

Projekty domów nowoczesnych : energooszczędny dom na wsi z zamkniętą kuchnią
Dane projektu:
Projekt: Palermo/DCB100, parterowy
Powierzchnia użytkowa: 147,2 m2
Cena projektu: 2770 zł
Koszt netto stanu surowego zamkniętego: 248 500 zł
Autorzy: dr inż. arch. Ludwika Juchniewicz-Lipińska, dr inż. arch. Miłosz Lipiński, LIPIŃSCY DOMY
Rozłożysty, energooszczędny dom parterowy dla dużej rodziny, dbającej o niskie koszty utrzymania. Optymalny układ funkcjonalny obejmuje wygodną strefę dzienną, która mieści kuchnię z miejscem na duży stół oraz przestronny salon z częściowo zadaszonym tarasem.
W prywatnej części przewidziano cztery sypialnie i dwie łazienki. Część gospodarcza to szeroki garaż i kotłownia, dostępne przez praktyczne pomieszczenie gospodarcze. Projekt zawiera system rekuperacji.

Parametry i konstrukcja domu
Technologia i konstrukcja
- ściany zewnętrzne: bloczek silikatowy 24 cm + styropian 20 cm,
- strop: drewniany,
- dach: kąt nachylenia 15°, dachówka ceramiczna.
Parametry domu
powierzchnia użytkowa: 147,2 m2 + garaż i kotłownia 30,3 m2
powierzchnia netto: 177,5 m2
powierzchnia zabudowy: 219,7 m2
kubatura: 1007 m3
wysokość budynku: 5,98 m
wymiary budynku: 21,44 x 13,24 m
minimalna szerokość działki: 28,50 m
Zapotrzebowanie na energię EP = 66,26 kWh/(m2rok)

Rzut techniczny - parter
Parter 147,2 + 30,3 m2
- wiatrołap 7,2 m2
- pokój dzienny 37,5 m2
- kuchnia 21,3 m2
- komunikacja 11,5 m2
- łazienka 8,4 m2
- pokój 14,9 m2
- pokój 10,0 m2
- pokój 13,7 m2
- pokój 12,5 m2
- łazienka 3,2 m2
- pom. gospodarcze 7,0 m2
- kotłownia 7,1 m2
- garaż 23,2 m2

Projekt małego domu na wieś z trzema sypialniami, gabinetem i pomieszczeniami gospodarczymi
Dane projektu:
Projekt: Dom w amarantusach 2, parterowy
Powierzchnia użytkowa: 167,7 m2
Cena projektu: 3170 zł
Koszt netto stanu surowego zamkniętego: 240 900 zł
Autorzy: ZESPÓŁ PROJEKTOWY ARCHON+
Dom na wsi z ogrodem. Projekt z czytelnym podziałem stref użytkowych. Elewacje domu to inspirowane naturą połączenie białego tynku z drewnianymi i kamiennymi okładzinami. Duże przeszklenia i wyjścia na taras naturalnie i płynnie łączą strefę mieszkalną z ogrodem. Przestronny salon gwarantuje spokój i wypoczynek przed kominkiem, a na tarasie można zorganizować letnią strefę relaksu. Jadalnia przy narożnym oknie zapewnia naturalne światło oraz wspaniały widok na ogród. Wygodny barek łączy ją z funkcjonalną kuchnią. Strefa prywatna to dostępne z osobnego korytarza trzy sypialnie, łazienka oraz gabinet. Sypialnia rodziców to apartament z własną garderobą, łazienką oraz wyjściem na taras. Część gospodarcza mieści duży garaż, kotłownię na paliwo stałe z pomieszczeniem gospodarczym oraz pralnię.

Parametry i konstrukcja domu
Technologia i konstrukcja
- ściany zewnętrzne: pustak ceramiczny Porotherm 25 cm + styropian 20 cm,
- strop: płyta żelbetowa,
- dach: kąt nachylenia 25°, dachówka ceramiczna.
Parametry domu
powierzchnia użytkowa: 167,7 m2 + garaż i kotłownia 43,8 m2
powierzchnia netto: 211,5 m2
powierzchnia zabudowy: 271,2 m2
kubatura: 1215 m3
wysokość budynku: 5,75 m
wymiary budynku: 17,42 x 22,12 m
minimalna szerokość działki: 25,42 m
Zapotrzebowanie na energię EP = 93,96 kWh/(m2rok)

Rzut techniczny - parter
Parter 167,7 + 43,8 m2
- wiatrołap 5,0 m2
- hol 4,6 m2
- kuchnia 12,1 m2
- jadalnia 12,8 m2
- salon 38,0 m2
- korytarz 9,0 m2
- pokój 13,0 m2
- pokój 13,0 m2
- sypialnia 19,6 m2
- garderoba 4,8 m2
- łazienka 7,0 m2
- łazienka 8,3 m2
- gabinet 12,3 m2
- pralnia 3,3 m2
- toaleta 2,0 m2
- pom. gospodarcze 2,9 m2
- kotłownia 6,7 m2
- garaż 37,1 m2

Prosty, funkcjonalny projekt domu na wsi z wygodnym strychem
Dane projektu:
Projekt: Nikozja II/DCP349a, z użytkowym poddaszem
Powierzchnia użytkowa: 149,5 m2
Cena projektu: 2870 zł
Koszt netto stanu surowego zamkniętego: 294 700 zł
Autorzy: dr inż. arch. Ludwika Juchniewicz-Lipińska, dr inż. arch. Miłosz Lipiński, LIPIŃSCY DOMY
Piękny, prosty i funkcjonalny dom dla czterech osób. Na parterze znajduje się przestronny salon połączony z kuchnią, spiżarnia i toaleta dla gości, a także sypialnia rodziców z własną łazienką. Sypialnie dzieci i łazienkę zlokalizowano na poddaszu. Część gospodarcza to dwustanowiskowy garaż, kotłownia i pralnia oraz strych nad garażem. Projekt zawiera instalację rekuperacji.

Parametry i konstrukcja domu
Technologia i konstrukcja
- ściany zewnętrzne: beton komórkowy lub cegła
- silikatowa 24 cm + styropian 20 cm,
- strop: żelbetowy gęstożebrowy,
- dach: kąt nachylenia 35°, dachówka cementowa lub ceramiczna.
Parametry domu
powierzchnia użytkowa: 149,5 m2 + garaż i pom. pomocnicze 47,2 m2 + strych 28,8 m2
powierzchnia netto: 248,4 m2
powierzchnia zabudowy: 173,5 m2
kubatura: 1050 m3
wysokość budynku: 7,76 m
wymiary budynku: 18,64 x 9,44 m
minimalna szerokość działki: 26,70 m
Zapotrzebowanie na energię EP = 76,49 kWh/(m2rok)

Rzut techniczny - parter
Parter 89,5 + 47,2 m2
- wiatrołap 6,7 m2
- komunikacja 3,2 m2
- WC 1,7 m2
- kuchnia 12,4 m2
- spiżarnia 2,9 m2
- pokój dzienny 31,3 m2
- pokój 14,1 m2
- łazienka 8,3 m2
- pralnia, c.o. 8,9 m2
- garaż 32,1 m2
- pom. pomocnicze 15,1 m2

Rzut techniczny - poddasze
Poddasze 60,0 + 28,8 m2
12. schody 3,5 m2
13. hol 17,9 m2
14. łazienka 9,0 m2
15. pokój 14,7 m2
16. pokój 14,9 m2
17. strych 28,8 m2

Energooszczędny projekt dom na wsi z dobrze doświetlonym salonem z antresolą
Dane projektu:
Projekt: HomeKONCEPT 49, z użytkowym poddaszem
Powierzchnia użytkowa: 172,0 m2
Cena projektu: 3400 zł
Koszt netto stanu surowego zamkniętego: 271 000 zł
Autorzy: ZESPÓŁ PROJEKTOWY HomeKONCEPT
Dom zaprojektowano na planie litery L, z wysuniętym do przodu garażem dwustanowiskowym. Bryła budynku jest ozdobiona charakterystycznym belkowaniem, które osłania strefę wejściową, a od strony ogrodu tworzy przyjemną, ażurową pergolę nad tarasem. Duże przeszklenie na elewacji bocznej znakomicie doświetla salon oraz ciąg komunikacyjny na antresoli poddasza. Budynek zaprojektowano jako energooszczędny z wentylacją mechaniczną.
Więcej projektów domów z antresolą znajdziecie w artykule: Projekty domów z antresolą - wybór redakcji [zdjęcia]

Parametry i konstrukcja domu
Technologia i konstrukcja
- ściany zewnętrzne: pustak ceramiczny 25 cm + styropian 20 cm/wełna mineralna 18 cm,
- strop: żelbetowy wylewany,
- dach: kąt nachylenia 37°, dachówka ceramiczna.
Parametry domu
powierzchnia użytkowa: 172,0 m2 + garaż 33,3 m2
powierzchnia netto: 227,8 m2
powierzchnia zabudowy: 172,8 m2
kubatura: 1036 m3
wysokość budynku: 7,42 m
wymiary budynku: 15,85 x 17,65 m
minimalna szerokość działki: 23,85 m
Zapotrzebowanie na energię EP = 86,50 kWh/(m2rok)

Rzut techniczny - Parter
Parter 98,6 + 33,3 m2
- wiatrołap 5,3 m2
- garderoba 4,7 m2
- salon + jadalnia 41,0 m2
- kuchnia 12,8 m2
- spiżarnia 3,6 m2
- komunikacja 10,9 m2
- gabinet 8,9 m2
- łazienka 3,9 m2
- kotłownia 3,5 m2
- pom. gospodarcze 4,0 m2
- garaż 33,3 m2

Rzut techniczny - poddasze
Poddasze 73,4 m2
12. komunikacja 20,1 m2
13. łazienka 7,8 m2
14. sypialnia 12,5 m2
15. sypialnia 7,9 m2
16. garderoba 2,9 m2
17. sypialnia 13,9 m2
18. łazienka 2,7 m2
19. garderoba 2,0 m2
20. garderoba 1,5 m2
21. pralnia 2,1 m2

Dom na wsi o tradycyjnej bryle z z pięcioma sypialniami
Dane projektu:
Projekt: Decyma 8, z użytkowym poddaszem
Powierzchnia użytkowa: 182,6 m2
Cena projektu: 2980 zł
Koszt netto stanu surowego zamkniętego: 206 700 zł
Autor: arch. Tomasz Sobieszuk, DOMY W STYLU
Projekt domu parterowego z użytkowym poddaszem i dwustanowiskowym garażem dla 4-6-osobowej rodziny. W części dziennej dominuje otwarta przestrzeń salonu i jadalni. Atutem jest niewielka spiżarnia, zlokalizowana przy otwartej kuchni. Na parterze zaprojektowano dwie sypialnie (każda z własną garderobą) oraz wygodną łazienkę i toaletę. Z garażu dostępne jest duże pomieszczenie gospodarcze z oddzielnym wyjściem na zewnątrz. Na poddaszu mieszczą się trzy sypialnie, garderoba oraz łazienka z pralnią. Projekt jest idealny do realizacji etapami. Zgrabną bryłę budynku wykończono jasnym tynkiem oraz płytką klinkierową w kolorze ceglastym. Dach pokryto tradycyjną dachówką ceramiczną w kolorze czerwonym. Rozległe tarasy harmonijnie łączą wnętrza domu z ogrodem.

Parametry i konstrukcja domu
Technologia i konstrukcja
- ściany zewnętrzne: pustak ceramiczny 25 cm + styropian 20 cm,
- strop: żelbetowy, wylewany,
- dach: kąt nachylenia 30°, dachówka ceramiczna.
Parametry domu
powierzchnia użytkowa: 182,6 m2 + garaż 31,6 m2
powierzchnia netto: 227,0 m2
powierzchnia zabudowy: 210,7 m2
kubatura: 1006 m3
wysokość budynku: 8,06 m
wymiary budynku: 15,65 x 17,45 m
minimalna szerokość działki: 22,65 m
Zapotrzebowanie na energię EP = 67,65 kWh/(m2rok)

Rzut techniczny - parter
Parter 126,5 + 31,6 m2
- wiatrołap 4,1 m2
- garderoba 3,6 m2
- hol 13,7 m2
- kuchnia 9,7 m2
- spiżarnia 2,4 m2
- salon + jadalnia 37,1 m2
- łazienka 5,6 m2
- sypialnia 15,1 m2
- garderoba 5,3 m2
- sypialnia 12,3 m2
- garderoba 4,0 m2
- WC 2,3 m2
- kotłownia 11,3 m2
- garaż 31,6 m2

Rzut techniczny - poddasze
Poddasze 56,1 m2
15. hol 12,6 m2
16. sypialnia 8,3 m2
17. sypialnia 9,8 m2
18. łazienka 5,6 m2
19. pralnia 4,8 m2
20. garderoba 3,9 m2
21. sypialnia 11,1 m2

Duży, nowoczesny dom na wsi z przeszklonym dwukondygnacyjnym salonem z antresolą
Dane projektu:
Projekt: LK&1433, z użytkowym poddaszem
Powierzchnia użytkowa: 317,9 m2
Cena projektu: 5250 zł
Koszt netto stanu surowego zamkniętego: 720 000 zł
Autor: arch. Leszek Kalandyk, LK-PROJEKT
Dom w stylu nowoczesnej stodoły, z wydzielonym miejscem na garaż. Parter w części użytkowej składa się z przestronnego salonu i oddzielonej, doświetlonej dodatkowymi oknami kuchni. Na poddaszu znajdują się sypialnie, łazienka i duża garderoba, nad garażem wydzielono ciche pomieszczenie przeznaczone do pracy. Dwukondygnacyjne przeszklenie zapewnia w domu dużą ilość światła, po zmroku zaś pozwala oświetlić z wnętrza odkrytą część dzienną. Nadwieszona lukarna i pokrycie dachu wykonane ze stali typu Corten sprawiają, że dom jest odporny na niesprzyjające warunki atmosferyczne. Projekt doskonale łączy potrzeby zawodowe i możliwość spędzania czasu z rodziną. Idealny dla ceniących sobie wygodę i nowoczesność rodzin z dwojgiem lub trojgiem dzieci.
Propozycje projektu nowoczesnego domu na wsi znajdziecie także w artykule: Klimatyczny dom za miastem w nowoczesnym wydaniu

Parametry i konstrukcja domu
Technologia i konstrukcja
- ściany zewnętrzne: pustak ceramiczny Porotherm 30 cm + styropian 20 cm,
- strop: żelbetowy, monolityczny,
- dach: kąt nachylenia 43°, blacha na rąbek stojący.
Parametry domu
powierzchnia użytkowa: 317,9 m2 + garaż 41,5 m2
powierzchnia netto: 367,1 m2
powierzchnia zabudowy: 298,3 m2
kubatura: 1640 m3
wysokość budynku: 9,00 m
wymiary budynku: 30,00 x 11,50 m
minimalna szerokość działki: 37,00 m
Zapotrzebowanie na energię EP = 18,12 kWh/(m2rok)
- Więcej o:
![Dom parterowy Dom parterowy]()
Domy parterowe - jedna kondygnacja, wiele zalet
![Dom z poddaszem do adaptacji pozwala nam na prowadzenie inwestycji zgodnie z naszymi bieżącymi potrzebami. Możemy najpierw wykończyć tylko parter i mieszkać w takim budynku nawet przez kilka lat, a dopiero później, kiedy zmienią się nasze potrzeby, zdecydować się na przeprowadzenie adaptacji poddasza Dom z poddaszem do adaptacji pozwala nam na prowadzenie inwestycji zgodnie z naszymi bieżącymi potrzebami. Możemy najpierw wykończyć tylko parter i mieszkać w takim budynku nawet przez kilka lat, a dopiero później, kiedy zmienią się nasze potrzeby, zdecydować się na przeprowadzenie adaptacji poddasza]()
Domy z poddaszem do adaptacji – komu warto je polecić?
![Dom na wąską działkę Dom na wąską działkę]()
Czy warto kupić wąską działkę?
![Domy na wąską działkę: Wąski – parterowy 137,2 m2 Projekty domów na wąską działkę]()
Projekty domów na wąską działkę wybrane przez architektów
![Projekty domów na wsi. Duży, nowoczesny dom na wsi Duży, nowoczesny dom na wsi]()
Projekty domów na wieś - nasze propozycje
![Projekty domów z poddaszem do adaptacji Projekty domów z poddaszem do adaptacji]()
Projekty domów z poddaszem do adaptacji
![TORONI B projekt domu do 120 m2 katalog projektów projekty domów dom do 120 m2]()
Najciekawsze projekty domów do 120 m2 - propozycje od architektów
![Projekty z okładziną na elewacji Projekty z okładziną na elewacji]()
Projekty domów z okładziną na elewacji











