Gdzie w mieszkaniu urządzić kuchnię?
Mamy w mieszkaniu jeden duży pokój i dwie sypialnie - akurat dla naszej trzyosobowej rodziny (mamy ośmioletnią córkę). Ale problemem jest cała część dzienna, która wydaje nam się nieustawna i trudna do rozplanowania. Chcemy zostawić otwartą kuchnię, zastanawiamy się, gdzie i jak zaprojektować zabudowę. No i gdzie umieścić kanapę i telewizor? Renata i Marek


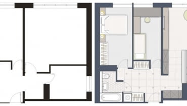
ROZWIĄZANIE 1: Kuchnia obok łazienki
Autor: Justyna Burdow-Gołoś

Punkt wyjścia: Otwartą kuchnię zaprojektowałam tuż przy łazience. To pozwoliło mi sensownie rozplanować resztę części dziennej, czyli salon z aneksem wypoczynkowym i małym kącikiem jadalnym.
• urządzenie kuchni w tym miejscu wymaga zmniejszenia sypialni rodziców i pokoju dziecka. Pomieszczenia te są jednak nadal na tyle duże, że można je funkcjonalnie urządzić – mieszczą się w nich wszystkie potrzebne sprzęty, łącznie z szafami. Szafę umieściłam również w przedpokoju,
• część robocza składa się z jednego ciągu szafek (dolnych i górnych). Jego uzupełnieniem jest wysoka zabudowa we wnęce przy ciągu kominowym – tam umieściłam lodówkę i dodatkowe pojemne schowki. Pokój dzienny jest teraz bardzo ustawny. W głębi znajduje się część wypoczynkowa z kanapą i szafką RTV, a przy kuchni stoi spory stół.
• łazienka ma taką samą wielkość i kształt jak na planie wyjściowym. Jest w niej miej- sce i na wannę (150 x 70 cm), i na kabinę prysznicową (80 x 80 cm). Umywalkę (szer. 60 cm) ustawiłam na szafce, a wąską pralkę (40 x 60 cm) ukryłam we wnęce.
ROZWIĄZANIE 2: Kuchnia przy balkonie
Autor: Krzysztof Radzanowski

Punkt wyjścia: Kuchnia powstała w przeznaczonym na nią miejscu, ale zmieniłem układ dwóch innych pomieszczeń – średniego pokoju i Państwa sypialni. To pozwoliło zaaranżować wygodną strefę dzienną.
• sypialnia została zmniejszona i prze- niesiona na środek mieszkania. Ponieważ nie ma okna, zadbałem o jej doświetlenie, montując w dwóch ścianach siegające do sufitu tafle mleczego szkła. Przeszklone mogą być również drzwi do sypialni. Potrzebna jest też odpowiednia wentylacja grawitacyjna – zapewni ją podcięcie w drzwiach (jak w łazienkowych) oraz rozszczelnienie jednego z przeszkleń.
• pokój dziecka i łazienka również są teraz mniejsze. W pokoju dziecka bez problemu mieści się jednak łóżko, biurko, szafa i regaliki, a w łazience – spora narożna kabina prysznicowa (100 x 80 cm), nablatowa umywalka (szer. 60 cm) oraz podwieszony sedes. Pralkę przeniosłem do przedpokoju i umieściłem w osobnej wnęce przy szafie.
• kuchenną zabudowę tworzy ciąg dolnych i górnych szafek oraz wyspa z płytą grzejną, osłonięta wysoką ścianką. Przy niej od strony części wypoczynkowej stoi szafka RTV.
- Więcej o:
- aranżacje wnętrz
- mieszkanie
![Sypialnia w małym mieszkaniu Sypialnia w małym mieszkaniu]()
Sypialnia w małym mieszkaniu
![Wygodne mieszkanie dla singla - architekt radzi Wygodne mieszkanie dla singla - architekt radzi]()
Wygodne mieszkanie dla singla
![Kuchnia w innym miejscu - porady architektów Kuchnia w innym miejscu - porady architektów]()
Kuchnia w innym miejscu
![Funkcjonalne mieszkanie dla pary z dzieckiem Funkcjonalne mieszkanie dla pary z dzieckiem]()
Funkcjonalne mieszkanie dla pary z dzieckiem
![Plan mieszkania Plan mieszkania]()
Cztery pokoje na 66 metrach. Jak je wygodnie urządzić?
![Plan mieszkania Plan mieszkania]()
Jak zaplanować wygodną kuchnię z jadalnią?
![Pomysł na dekorację ściany Pomysł na dekorację ściany]()
Nie kupuj gotowych dekoracji na ściany - wykorzystaj to, co masz w domu
![Wnętrza w stylu Memphis. Wnętrza w stylu Memphis.]()
Wnętrza w stylu Memphis









