Dom jednorodzinny: własny, mały i na kółkach
Minidomy skradły już serca Amerykanom, a teraz zaczynają podbijać Europę. W Polsce prekursorami mody na minidomy są bracia Kamil i Marcin Pastuszak (Tiny Smart House Polska). Każdy z ich projektów to inne wyzwanie, a każdy klient ma zupełnie inne, wyjątkowe wymagania. W dodatku każdy dom ma swoje własne... kółka.
Słodziak to jeden z pierwszych minidomków, zbudowanych przez Kamila i Marcina z programu HGTV „Odjazdowe minidomy”. Wnętrze domku zostało zaprojektowane przez Pracownię Doroty Szelągowskiej. Kamil i Marcin to bracia, którzy zajmują się budową naprawdę odjazdowych minidomków. Z pomysłem przyszedł Kamil: Oglądając telewizję, zauważyłem, że w Stanach bardzo szybko rozwija się trend związany z mieszkaniem w małym domku na kołach. Pomyślałem – w Polsce tego nie ma, mój brat jest cieślą – może to jest ten moment, kiedy powinniśmy połączyć siły? Razem z Kamilem i Marcinem pracują ich cioteczni bracia (z zawodu stolarze), szwagier i mama – to bardzo rodzinny biznes. Do zespołu dołączyła też Eliza Ziemińska – projektantka wnętrz.

Słodziak miał być wizytówką firmy Kamila i Marcina. Powstał z myślą o targach i wystawach – można go było oglądać między innymi na targach Warsaw Home i na 4 Design Days w Katowicach. Ceny takich minidomów na kółkach zaczynają się od około 90 tys. zł.

Minidom - kuchnia
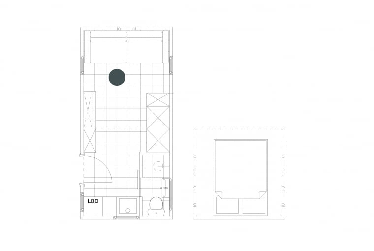
Przy wejściu do domku zaplanowana została kuchnia – wprawdzie nieduża, za to bardzo funkcjonalna

Na prawo od wejścia umieszczono wygodny blat, który można złożyć, kiedy nie jest potrzebny. Nad nim znalazły się dodatkowe półki do przechowywania.

W głębi domku, na parterze ustawiono dużą, rozkładaną sofę, na której wygodnie mogą spać dwie osoby. Na podłodze ułożone zostały panele winylowe LVT HARVEY MARIA, które są nie tylko ładne, niedrogie i wodoodporne, ale też lekkie – co ma znaczenie w przypadku domu na kółkach.

Wnętrze domku jest jasne – dużo jest bieli z błękitnymi akcentami i ciepłych odcieni naturalnego drewna. Choć domek jest nieduży, każdy centymetr został wykorzystany, dzięki czemu wygodnie pomieszczą się w nim 4 osoby. Większość elementów wyposażenia wnętrza została wykonana ręcznie, na wymiar, z drewna oraz wytrzymałej (i modnej) sklejki

W łazience projektantka zaplanowała prysznic, zamykany składanymi drzwiami. Do wykończenia ściany użyto tych samych płytek winylowych, które zdobią podłogę domu

Do łazienki wchodzi się przez drzwi przesuwne, które po otwarciu nie zajmują miejsca

Na antresoli umieszczono sypialnię, z wygodnym materacem i lampkami do czytania. Wystarczy wyciągnąć rękę, by – nie wstając nawet z łóżka – zamknąć lub otworzyć okna
- Więcej o:
- dom jednorodzinny
![Trend na mikrodomy - również w Polsce Trend na mikrodomy - również w Polsce]()
Trend na mikrodomy - również w Polsce
![Wizualizacja domu o powierzchni 85 mkw Mikrodomy we wsi Całowanie]()
Mikrodomy w zgodzie z naturą - polskie hytte
![Jenna i Guillaume siedzą na "progu" swojego domu. mały dom, mały domek, domek na kółkach, dom na kółkach, mobilny dom, tiny house]()
Rzucili pracę, zbudowali mały domek na kółkach i ruszyli w świat
![OD WIOSNY DO JESIENI. Naturalnym przedłużeniem salonu jest ogródek - wystarczy rozsunąć tarasowe drzwi. Stolik kawowy z IKEA nabrał szyku, gdy właściciele zamontowali na nim drewniany blat. Na podłodze leżą deski z bielonego dębu (Kronopol). OD WIOSNY DO JESIENI. Naturalnym przedłużeniem salonu jest ogródek - wystarczy rozsunąć tarasowe drzwi. Stolik kawowy z IKEA nabrał szyku, gdy właściciele zamontowali na nim drewniany blat. Na podłodze leżą deski z bielonego dębu (Kronopol).]()
Mały domek zbudowany własnymi rękami
![Dom w Jastrzębiej Górze. Proj. Archmondo Dom w Jastrzębiej Górze. Proj. Archmondo]()
Dom w Jastrzębiej Górze od Archmondo. Architektura spokoju
![Z lewej: Gerrit Rietveld; Z prawej na górze: Czerwono-niebieskie krzesło ; Z prawej na dole: Dom Rietvelda w Utrechcie Z lewej: Gerrit Rietveld; Z prawej na górze: Czerwono-niebieskie krzesło ; Z prawej na dole: Dom Rietvelda w Utrechcie]()
Gerrit Rietveld. Nie tylko czerwono-niebieskie krzesło i Dom Rietvelda [ZNANI ARCHITEKCI]
![Palácio da Alvorada w Brasilii. Proj. Oscar Niemeyer Palácio da Alvorada w Brasilii. Proj. Oscar Niemeyer]()
Dom godny prezydenta. Palácio da Alvorada w Brasilii [IKONY ARCHITEKTURY]
![fot.Steven Vance,CC BY 2.0 fot.Steven Vance,CC BY 2.0]()
Kosmiczne projekty, które miały podbić Ziemię. Tak wyobrażano sobie domy przyszłości











