Trzypokojowe mieszkanie dla czteroosobowej rodziny
Jan z narzeczoną kupili mieszkanie, w który chcą urządzić dla siebie i przyszłych dzieci, a tych planują mieć dwoje. Mają 55 metrów i trzy pokoje, a do tego potrzebują miejsca do pracy. Architekci mają dwa rozwiązania.

Kupiliśmy trzypokojowe mieszkanie. Na razie jest nas dwoje, ale chcemy je urządzić tak, by mogła w nim mieszkać czteroosobowa rodzina. Pokoje są niewielkie - który z nich przeznaczyć na salon? Gdzie umieścić kąt jadalny z rozkładanym stołem? Potrzebne jest nam też miejsce do pracy (z biurkiem na komputer i szafkami) oraz co najmniej dwie szafy. Jan z narzeczoną
Rozwiązanie 1: salon w samym centrum
Magdalena Żmihorska-Tomasik
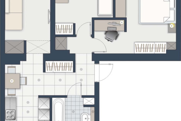
PUNKT WYJŚCIA: Rzeczywiście, pokoje nie są duże. Salon proponuję urządzić w największym z nich (na środku mieszkania). Kuchnię przeniosłam do najmniejszego pokoju, tak by sąsiadowała ze strefą wypoczynkową.
Kuchnia jest na tyle duża, że mieści się w niej jednociągowa zabudowa, duży stół oraz kredens (przy wejściu). Z pokojem dziennym łączy ją otwarte przejście. Ale uwaga: ściana między tymi pomieszczeniami jest konstrukcyjna, dlatego przed wybiciem otworu należy przygotować projekt i zgłosić go do administratora budynku, a praca musi przebiegać pod nadzorem uprawnionego konstruktora. Taki trud warto jednak, moim zdaniem, ponieść – zapewni to dobrą łączność między kuchnią a salonem. Poza tym po zamurowaniu dawnego wejścia w głębi przedpokoju mogła powstać duża garderoba – 2,7 m kw.
Do państwa sypialni prowadzą z pokoju dziennego suwane drzwi. Stoi w niej podwójne łóżko z szafkami nocnymi, szafa, a w rogu przy oknie – narożne biurko. Szafa jest też w dziecięcym pokoju urządzonym w dawnej kuchni, zmniejszonej na rzecz garderoby. Kiedy dzieci będzie dwoje, warto rozważyć wstawienie piętrowego łóżka.
Rozwiązanie 2: taki sam układ
Michał Grzelak
PUNKT WYJŚCIA: Układ pomieszczeń jest taki jak na planie wyjściowym, zmieniły się natomiast metraże poszczególnych pomieszczeń.
Sporą kuchnię nieco zmniejszyłem na korzyść ciasnej łazienki, ale to bynajmniej nie wpłynęło na jej funkcjonalność – starczyło miejsca i na zabudowę w kształcie litery U (a więc z dużą liczbą szafek), i na kąt jadalny. Kuchnia jest połączona z przedpokojem, a do pokoju dziennego prowadzi z niej otwarte przejście. To sprawiło, że ta część mieszkania nabrała „oddechu” i wydaje się przestronniejsza.
Ściana między pokojem dziecięcym a Państwa sypialnią została przebudowana. Dzięki temu w części wejściowej sypialni mógł powstać wygodny kąt do pracy ze sporym biurkiem i półkami. W obydwu tych pokojach znajdują się szafy; trzecią, ogólnodostępną, zaprojektowałem w przedpokoju. Docelowo, kiedy dzieci będzie dwoje, rodzice mogą się przenieść ze spaniem do salonu, a ich sypialnia stanie się drugim pokojem dziecięcym.
- Więcej o:
![Plan mieszkania Plan mieszkania]()
Dobre miejsce na mini biuro w 70-metrowym mieszkaniu
![Plan mieszkania Plan mieszkania]()
Cztery pokoje na 66 metrach. Jak je wygodnie urządzić?
![Plan mieszkania - punk wyjścia Plan mieszkania - punk wyjścia]()
Funkcjonalna kuchnia na 46 metrach kw.
![Plan mieszkania Plan mieszkania]()
Czy da się wydzielić trzy sypialnie na 61 m kw.?
![Więcej komfortu i przestrzeni w mieszkaniu dla dwóch osób Więcej komfortu i przestrzeni w mieszkaniu dla dwóch osób]()
Więcej komfortu i przestrzeni w mieszkaniu dla dwóch osób
![Więcej miejsca w mieszkaniu dla rodziny Więcej miejsca w mieszkaniu dla rodziny]()
Więcej miejsca w mieszkaniu dla rodziny
![100-metrowy, rodzinny apartament na skraju Trójmiejskiego Parku Krajobrazowego.Proj. Tatewik Caturowa_ 100-metrowy, rodzinny apartament na skraju Trójmiejskiego Parku Krajobrazowego.Proj. Tatewik Caturowa_]()
W tonacji taupe. 100-metrowy, rodzinny apartament na skraju Trójmiejskiego Parku Krajobrazowego
![Zmiany funkcjonalne w mieszkaniu - plan wyjściowy Zmiany funkcjonalne w mieszkaniu - plan wyjściowy]()
Zmiany funkcjonalne w mieszkaniu












