Oddzielnie, ale razem - projekt mieszkania
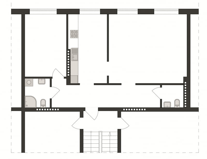
Jakiś czas temu kupiliśmy z mężem dwupokojowe mieszkanie (ok. 85 m kw.). Zanim się wprowadzimy z naszą nastoletnią córką, chcielibyśmy dokonać paru zmian w układzie pomieszczeń. Na pewno będzie nam potrzebny dodatkowy pokój dla córki, sypialnia, pokój dzienny połączony z kuchnią, łazienka, osobne WC i – jeśli wystarczy miejsca – to mała spiżarka przy aneksie kuchennym. Agnieszka i Paweł, Opole

Po zapoznaniu się z Państwa mieszkaniem postanowiłem podjąć się zaprojektowania jego przebudowy. Pragnę przedstawić – jak zawsze – dwa rozwiązania aranżacji wnętrza z uwzględnieniem Państwa wytycznych.
ŁUKASZ KĘDZIORA Studio Architektury FormaNova architekturakedziora@gmail.com tel. 605 045 682
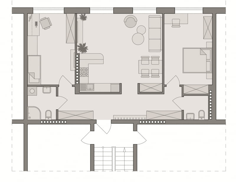
PROPOZYCJA I
Aranżację tego rozwiązania zaczynam od korytarza, gdzie po lewej stronie od wejścia umieściłem szafę, natomiast po prawej – niską szafkę na obuwie z ciągiem wieszaków na odzież wierzchnią. Za otwartą garderobą umieściłem jeszcze jedną szafę. Te elementy wyposażenia sprawią, że przedpokój zyska na estetyce i funkcjonalności. Następnie z długiego korytarza w lewym skrzydle mieszkania możemy dostać się do łazienki, w której znajduje się kabina prysznicowa, miska ustępowa ze spłuczką zewnętrzną, umywalka oraz pralka. Obok łazienki znajduje się pokój córki – mamy tu łóżko, biurko do odrabiania lekcji, niską szafkę przy biurku, szafę oraz praktyczną komodę.
Poruszając się dalej – zgodnie z ruchem wskazówek zegara – z korytarza możemy dostać się do pokoju dziennego z aneksem kuchennym. Tu, po prawej stronie, mamy część kuchenną, którą stanowi blat na planie niedomkniętej litery U z ciągiem szafek. Za nim mamy niską szafkę na telewizor. Po lewej stronie pokoju mieści się duża sofa, okrągły fotel oraz dwie okrągłe ławy. Zaraz przy wejściu znajduje się część jadalna ze stołem z czterema krzesłami oraz regałem w zabudowie. Kolejne pomieszczenie to sypialnia. W sypialni, oprócz dużego łóżka małżeńskiego, mieści się szafa wnękowa, biurko/toaletka oraz druga szafa.
Ostatnie pomieszczenie to WC z miską ustępową ze spłuczką zewnętrzną oraz umywalką

PROPOZYCJA II
Propozycja ta wiąże się z nieco większą przebudową ścian.
Zaraz po wejściu do mieszkania znajdziemy się w wydzielonym korytarzu z szafą garderobianą, naprzeciwko szafy, po drugiej stronie korytarza, mieści się niska szafka na obuwie oraz wieszaki na odzież wierzchnią. Po wyjściu ze strefy wejściowej, kierując się w lewą stronę, dostać się możemy do małego WC z miską ustępową oraz umywalką. Idąc dalej mamy łazienkę, która w stosunku do poprzedniego rozwiązania nie uległa zmianie.
Następne pomieszczenie to pokój córki, który również zasadniczo się nie zmienił. Mieści się tutaj wygodne łóżko, ergonomiczne biurko do odrabiania lekcji, niska szafka przy biurku, pojemna szafa, a także komoda. Przemieszczając się dalej, znajdziemy się w sypialni, w której mieści się łóżko małżeńskie, szafa wnękowa na całą długość ściany oraz biurko/toaletka z krzesłem.
Ostatnim pomieszczeniem jest pokój dzienny z aneksem kuchennym, który powstał poprzez wyburzenie ścianki działowej, znajdującej się między istniejącym pokojem a WC i korytarzem. Aneks (widzimy go naprzeciwko wejścia do pokoju) obejmuje ciąg szafek kuchennych na planie litery L. Bezpośrednio z części kuchennej możemy w łatwy sposób dostać się do niewielkiej spiżarki znajdującej się zaraz przy wejściu do pokoju. Z kolei na część wypoczynkową pokoju dziennego, znajdującą się bliżej okien, składają się: sofa narożna, ława oraz szafka na sprzęt RTV. Tę część oddziela od aneksu kuchennego stół jadalny z czterema krzesłami.

- Więcej o:
![Stan istniejący mieszkania. Stan istniejący mieszkania.]()
Oddzielnie, ale razem - projekt mieszkania
![Więcej komfortu i przestrzeni w mieszkaniu dla dwóch osób Więcej komfortu i przestrzeni w mieszkaniu dla dwóch osób]()
Więcej komfortu i przestrzeni w mieszkaniu dla dwóch osób
![Więcej miejsca w mieszkaniu dla rodziny Więcej miejsca w mieszkaniu dla rodziny]()
Więcej miejsca w mieszkaniu dla rodziny
![100-metrowy, rodzinny apartament na skraju Trójmiejskiego Parku Krajobrazowego.Proj. Tatewik Caturowa_ 100-metrowy, rodzinny apartament na skraju Trójmiejskiego Parku Krajobrazowego.Proj. Tatewik Caturowa_]()
W tonacji taupe. 100-metrowy, rodzinny apartament na skraju Trójmiejskiego Parku Krajobrazowego
![Zmiany funkcjonalne w mieszkaniu - plan wyjściowy Zmiany funkcjonalne w mieszkaniu - plan wyjściowy]()
Zmiany funkcjonalne w mieszkaniu
![W nowej konfiguracji - projekt mieszkania W nowej konfiguracji - projekt mieszkania]()
W nowej konfiguracji - projekt mieszkania
![Plan wyjściowy mieszkania Plan wyjściowy mieszkania]()
Ładnie i funkcjonalnie - mieszkanie dla 5-osobowej rodziny
![70-metrowe mieszkanie dla 4-osobowej rodziny 70-metrowe mieszkanie dla 4-osobowej rodziny]()
70-metrowe mieszkanie dla rodziny z dwójką dzieci









