Dom z wysokim salonem
Nowoczesna bryła domu typu stodoła kryje wnętrza, w których można odetchnąć, ale też poczuć się zainspirowanym. Proste wzornictwo z charakterem, naturalne materiały oraz otoczenie lasu tworzą przestrzeń, w której łatwo odnaleźć balans między pracą, odpoczynkiem i byciem razem.

Pod Gliwicami, na skraju nowego osiedla, tam, gdzie asfalt ustępuje miękkiej ściółce zagajnika, powstał dom będący własnym kawałkiem świata Anny, Łukasza, ich syna Borysa oraz dwóch kotów, Ryśka i Igi. 146 m kw. nowoczesnej bryły typu stodoła, autorstwa biura BAD Architekci, stanęło w otoczeniu, które zmienia się wraz z rytmem natury. Za dużym, południowym oknem zamiast sąsiadów – las, w którym czasem przemyka sarna, zając czy ciekawski lis. Blisko stąd do stawu, małej rzeczki i wjazdu na autostradę A1, dzięki czemu życie między naturą a miastem układa się zadziwiająco harmonijnie.
Rodzina powierzyła wykończenie wnętrz pracowni Ambiente Dominika Cymerman. Powstała przestrzeń nowoczesna, a zarazem ciepła i przyjazna, spójna z architekturą budynku i pozostająca w dialogu z otaczającą przyrodą – stąd akcenty zieleni, motywy roślinne i wzór otoczaków na podłodze całego domu.

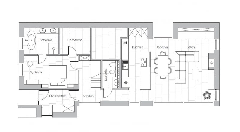
Podstawą projektu stał się układ ścian i funkcji, ustalony wcześniej przez gospodarzy z autorami bryły domu. Część dzienna obejmuje kuchnię z jadalnią, salon i toaletę dla gości, a strefa prywatna została rozlokowana na dwóch kondygnacjach: na parterze znalazła się sypialnia rodziców z pokojem kąpielowym i garderobą, na piętrze – pokój i łazienka syna.
Dominika Cymerman rozpoczęła prace nad projektem wnętrz na wczesnym etapie budowy domu, co pozwoliło jej realnie wpłynąć na ostateczny charakter wnętrz. Zakres jej prac obejmował projekt wykończenia części dziennej, prywatnej części rodziców oraz łazienkę syna na piętrze, której układ projektantka nieco zmieniła na potrzeby aranżacji.


Wczesne zaangażowanie projektantki pozwoliło wprowadzić koncepcję wyeksponowania betonowych płyt stropowych, które stanowią mocny akcent wizualny już przy wejściu do domu.
– Pomysł z zachowaniem surowego stropu zakiełkował w mojej głowie po wybraniu podłogi ze wzorem szarych otoczaków – opowiada Dominika Cymerman – jako domknięcie wizualne wnętrza, stworzenie ramy podłoga-sufit. Kiedy podczas jednej z wizyt na budowie zobaczyłam zamontowany strop, byłam pewna, że musi zostać w takiej postaci. Inwestorzy na szczęście również przyklasnęli temu pomysłowi.
Dopełnieniem betonowego sufitu w przedsionku i kamiennej podłogi są czarne przewody prowadzone po wierzchu płyty stropowej oraz proste, techniczne oprawy oświetleniowe. Całość równoważą białe fronty szaf na ubrania i duże tafle luster, które optycznie powiększają i rozjaśniają przestrzeń oraz wprowadzają do niej lekkość.
Największym wyzwaniem okazała się imponująca, otwarta strefa dzienna. Salon połączony z jadalnią, miejscami sięgający aż do siedmiu metrów wysokości, wymagał przemyślanej kompozycji, aby nie przytłaczać skalą, a jednocześnie zachować reprezentacyjny wygląd. Projektantka podkreśliła ten efekt kontrastem czerni i bieli na ścianach oraz dekoracyjną obudową kominka prowadzoną na całą wysokość pomieszczenia. Został on wykończony zielonymi płytkami-cegiełkami.
Wysoka przestrzeń wymagała również szczególnej uwagi przy planowaniu oświetlenia. Zrezygnowano z długich, wiszących przewodów, które mogłyby zaburzać proporcje, kołysać się wraz z ruchem powietrza czy gromadzić kurz. Zamiast tego lampa nad stołem w części jadalnianej została zawieszona na specjalnie wykonanym, metalowym ramieniu, a całość doświetlają reflektory zamontowane na drewnianych jętkach — sterowane łącznikami, pozwalają łatwo budować nastrój i regulować intensywność światła. W strefie wypoczynkowej stanęła skórzana sofa w odcieniu bardzo ciemnej śliwki — mebel, który inwestorzy mieli już wcześniej i który dobrze wpisał się w nową aranżację.


W salonie uwagę przyciąga również imponujący regał z otwartymi półkami, wykonany na zamówienie przez stolarza, podobnie jak pozostałe zabudowy. Łączy on kilka funkcji: miejsca do przechowywania, wygodnego siedziska oraz strefy dla kotów, które są pełnoprawnymi domownikami. Rytmiczne boksy zabudowy tworzą nie tylko praktyczne półki, lecz także atrakcyjną trasę wspinaczkową dla futrzastych mieszkańców, pozwalając im obserwować dom z ulubionej, podwyższonej perspektywy lub ucinać sobie tu drzemkę.


W otwartej przestrzeni parteru strefę kuchni wyznacza sufit o standardowej wysokości wraz ze ścianami i sufitem pomalowanym na głęboką czerń. Jej granicę określa wyspa kuchenna z zamontowaną w blacie płytą grzewczą — dopiero za nią wnętrze otwiera się ku wysokiemu salonowi. Tuż obok wyspy powstał murek, który chroni przed pryskającym tłuszczem ustawiony po jego drugiej stronie stół jadalniany. Główna zabudowa kuchenna, zaprojektowana wzdłuż ściany, łączy ciepły dębowy fornir z matowymi, czarnymi frontami i blatami z czarnego granitu. Nad blatem oraz na murku zastosowano te same płytki, co na obudowie kominka, tworząc spójny, powtarzalny akcent wystroju. Czerń sufitu dodaje kuchni wyrafinowania i głębi, stanowiąc wyraziste tło dla drewna.

Sypialnia rodziców, zlokalizowana na parterze, została utrzymana w podobnej, wyrazistej palecie barw i materiałów, która pojawia się w strefie dziennej. Wnętrze umeblowano drewnianym łóżkiem na metalowym stelażu oraz komodą — wybranymi wcześniej przez właścicieli, a do kompletu dobrano szafki nocne z podobnego odcienia drewna, osadzone na czarnych, metalowych nóżkach. Ścianę za łóżkiem pokryto strukturalną tapetą w morskim kolorze, wprowadzającą subtelną głębię, a naprzeciwko – tapetą z motywem traw, która ukrywa drzwi do łazienki i garderoby.

Osobista łazienka rodziców, pełniąca funkcję pokoju kąpielowego, została zaprojektowana jako komfortowa strefa relaksu. Wyposażono ją w dwie umywalki, kabinę prysznicową oraz wolno stojącą wannę. Ściany pokryto antracytowymi płytkami o metalicznym wykończeniu, których odcień zmienia się w zależności od oświetlenia — od grafitowego po niemal czarny. Szafka umywalkowa, wykończona dębowym fornirem nawiązującym do wystroju kuchni, została zestawiona z blatem z białego konglomeratu, a duże lustro przyklejone bezpośrednio do ściany optycznie rozjaśnia przestrzeń. Podłogę wyłożono szarym gresem z motywem otoczaków, spójnym z pozostałymi pomieszczeniami domu.

Nie można też nie wspomnieć o toalecie gościnnej, zaprojektowanej za kuchnią, która stała się jednym z najbardziej dopracowanych pomieszczeń w całym domu. Mimo trudnych, wydłużonych proporcji projektantka nadała jej elegancki i funkcjonalny charakter, dbając o każdy detal. Ściany zdobi tapeta z pejzażem przypominającym rysunek czarnym piórkiem, która dodaje wnętrzu wyjątkowej lekkości. Nad blatem zastosowano te same płytki co w pokoju kąpielowym, a na podłodze pojawia się wyrazisty gres z motywem otoczaków.
Całe wnętrze tworzy harmonijną, konsekwentną całość, opartą na prostych formach i wyrazistych materiałach. To dom, który w pełni odpowiada na potrzeby mieszkańców, łącząc estetykę z codziennym komfortem życia.











- Więcej o:
![Apartament w Singapurze projektu pracowni Pupil Office Apartament w Singapurze projektu pracowni Pupil Office]()
Apartament w Singapurze projektu pracowni Pupil Office
![Wysoka, sięgająca sufitu obudowa kominka z zielonymi płytkami-cegiełkami tworzy wyrazisty akcent wnętrza. Misterne układanie i fugowanie drobnych kafli wymagało ogromnej precyzji – zadaniu temu, podobnie jak wielu innym wymagającym wytrwałości, sprostali Krzysztof i Maciej z ekipy budowlanej Kombuilder Krzysztof Czapski. Wysoka, sięgająca sufitu obudowa kominka z zielonymi płytkami-cegiełkami tworzy wyrazisty akcent wnętrza. Misterne układanie i fugowanie drobnych kafli wymagało ogromnej precyzji – zadaniu temu, podobnie jak wielu innym wymagającym wytrwałości, sprostali Krzysztof i Maciej z ekipy budowlanej Kombuilder Krzysztof Czapski.]()
Dom z wysokim salonem
![Eklektyczna aranżacja mieszkania w zabytkowej kamienicy Eklektyczna aranżacja mieszkania w zabytkowej kamienicy]()
Eklektyczna aranżacja mieszkania w zabytkowej kamienicy
![20-metrowe nowoczesne mieszkanie w Gdańsku 20-metrowe nowoczesne mieszkanie w Gdańsku]()
20-metrowe nowoczesne mieszkanie w Gdańsku
![120-metrowy penthouse w Wilanowie - projekt pracowni HOLA Design 120-metrowy penthouse w Wilanowie - projekt pracowni HOLA Design]()
120-metrowy penthouse w Wilanowie: projekt pracowni HOLA Design
![Wnętrza domu w Katowicach - realizacja pracowni AVO Architekci Wnętrza domu w Katowicach - realizacja pracowni AVO Architekci]()
Wnętrza domu w Katowicach - realizacja pracowni AVO Architekci
![80-metrowe mieszkanie na warszawskim Muranowie 80-metrowe mieszkanie na warszawskim Muranowie]()
80-metrowe mieszkanie na warszawskim Muranowie
![Nowoczesny komfort - dom pokazowy w podwarszawskim Raszynie Nowoczesny komfort - dom pokazowy w podwarszawskim Raszynie]()
Nowoczesny komfort - dom pokazowy w podwarszawskim Raszynie









