Pojedynek architektów: dom dla licznej rodziny [część 1]
Komfortowy dom dla licznej rodziny to taki, w którym dla każdego znajdzie się wygodne miejsce do odpoczynku, pracy, wspólnych rozmów i goszczenia znajomych. Nasi eksperci postanowili pomóc w wyborze projektu właśnie takim rodzinom.


Iwona Mere - ekspertka "Ładnego Domu", Architektka z dużą praktyką, związana z miesięcznikiem od 1998 roku - wybrała projekt "Passiv".
Zobacz więcej projektów domów o powierzchni 150-200 m2
Choć jak wszyscy dobrze wiemy, polskie rodziny liczebnie maleją i zwykle dziś składają się z trzech, góra czterech osób mieszkających pod jednym dachem, to jednak nadal są tacy, którzy marzą co najmniej o trójce, a może nawet i czwórce dzieci.
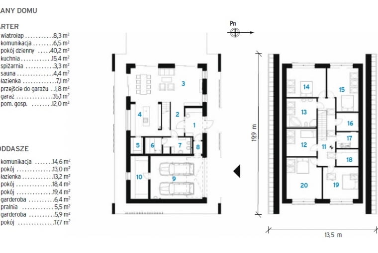
W domu według projektu "Passiv" wygodnie zamieszka dość liczna, pięcio-, a nawet sześcioosobowa rodzina. Budynek ma prawie 250 m2 powierzchni i sporą kubaturę (1200 m3), a choć parter muszą podzielić między siebie mieszkańcy i ich samochody, to całe obszerne poddasze (ok. 136 m2), z wysokimi ściankami kolankowymi, przeznaczono na pokoje, garderoby, łazienkę i pralnię. Cztery komfortowe sypialnie umieszczono przy ścianach szczytowych i doświetlają je duże okna balkonowe (zabezpieczone balustradami). Do pozostałych pomieszczeń światło można wprowadzić jedynie przez dach - w okna dachowe wyposażono więc: pokój gościnny, kąpielowy oraz pralnię. Warto rozważyć sprawę innego podziału prywatnego rejonu z jednego, ale dość istotnego powodu - przy pełnym "obłożeniu pokojów" jedna, nawet obszerna łazienka może nie wystarczyć. Druga znajduje się na parterze, ale paradoksalnie jej atrakcyjność - wsparta sąsiedztwem sauny - nie ułatwi chyba rozwiązania problemu z dostępem do sanitariatów w krytycznych porach (Projekt ma dwie wersje, obie prezentujemy na wizualizacjach).
Metryka projektu:
Powierzchnia użytkowa: 250 m2;
Powierzchnia zabudowy: 175 m2;
Kubatura: 1200 m3;
Wymiary budynku: 19,9x 13,4 m;
Minimalne wymiary działki: 25,9 x 19,4 m;
Wysokość budynku: 8,6 m;
Kąt nachylenia dachu: 38°;
Autorzy projektu domu: Bolesław Klimkiewicz, Michał Pierzchalski; kontakt: M2STUDIO; www.m2studio.pl; e-mail: info@m2studio.pl
Największe zalety projektu domu "Passiv"
Powody, dla których polecam właśnie ten dom:
- efektowna bryła - klasyczny budynek z użytkowym poddaszem jest okryty "drugą skórą" - odsuniętą od ścian zewnętrznych konstrukcją, dzięki której wokół budynku powstaje podcień - "obejście" chroniące i poszerzające wnętrza;
- pełny program funkcjonalny - garaż na dwa samochody, część dzienna, obszerna strefa prywatna (z pięcioma pokojami) i zaplecze gospodarcze - taki układ gwarantuje dobre wykorzystanie terenu oraz schludny wygląd posesji;
- zwarta forma, przy odpowiedniej orientacji względem stron świata oraz dzięki energooszczędnym rozwiązaniom, zapewni niskie koszty eksploatacyjne.
Idealna działka pod budowę domu "Passiv"
Wygląd budynku
Jak może się prezentować dom wzniesiony według projektu "Passiv". Zwykły dwuspadowy dach z pewnością nie będzie generował wizualnego chaosu w otoczeniu, wręcz przeciwnie - czyste, horyzontalne linie mogą się przyczynić do uspokojenia relacji. To jednocześnie sposób na możliwie dużą ilość miejsca na poddaszu, skosy dachu nie okrawają nadmiernie przestrzeni użytkowej, zwłaszcza uniesione odpowiednio wysoko na ściankach kolankowych - tu obywamy się właściwie bez strat.
Podoba mi się balans między zasadniczymi poziomami budynku (podkreślonymi także poziomym wykrojem przeszkleń) i subtelniejszym, pionowym rysunkiem ażurowych przesłon wokół zadaszonego "obejścia" i łączeniami arkuszy blachy pokrycia dachowego na rąbek. Równie atrakcyjnie przedstawia się stonowana, bezpretensjonalna kolorystyka domostwa: szarości wywiedzione z blaszanych tonów dachu ładnie odbijają się od bieli gładko tynkowanych powierzchni, a kompozycję dopełnia i ociepla naturalna barwa drewna. Stolarka okienna oraz drzwiowa powinna być - oczywiście - zsynchronizowana z wybarwieniem drewnianych elementów zewnętrznych "żaluzji" - łamaczy światła. W połączeniu z ogrodową zielenią taka całość nabierze życia, o ile zdecydujemy się na obsadzenie posesji dostatecznie urozmaiconą roślinnością. Najlepsze efekty zagwarantuje wybór liściastych drzew i krzewów, zmieniających wygląd wraz z porami roku, intensywnie przebarwiających się pnączy nieco bardziej wymagających gatunków, a nie tylko bezproblemowych, zimozielonych ("nieśmiertelnych") żywotników, które nie zapewnią domostwu efektownej oprawy (różnorodności i zmienności eksponowanej na neutralnym tle).
Prosta bryła z mocnym konturem (podkreślonym funkcjonalnym "obejściem") dobrze zaprezentuje się zarówno w naturalnym otoczeniu, jak i pośród gęstej, współczesnej zabudowy. Wielu projektom realizowanym zwykle w zwartej, nadmiernie zróżnicowanej zabudowie brak takiej dyscypliny, stąd dominujące wrażenie przestrzennego chaosu. Tu nie ma takiego niebezpieczeństwa.
Wnętrza domu i ich funkcje
Realizacja kompletnego programu funkcjonalnego - lokum dla pięciu stałych mieszkańców (np. rodziny z trojgiem dzieci) i dwóch samochodów - w jednej, obszernej, ale zwartej i klarownej bryle bardzo mi się podoba. Dlatego choć nie jestem entuzjastką "zrównywania praw" domowników i ich aut - w tym przypadku uznaję wyższość takiego rozwiązania nad projektami o bardziej rozrzeźbionych bryłach (lepiej oddających hierarchię przestrzeni głównych i pomocniczych - m.in. garaży).
Za bardzo ciekawy uważam też pomysł utworzenia wokół wnętrz - szczególnie tych na poziomie parteru - strefy buforowej. Zadaszone i osłonięte, ale otwarte "obejście" wokół głównej bryły praktycznie poszerza wnętrza i łączy je z otoczeniem, zachęcając do szerokiego otwierania się na ogród. Osłony znoszą ryzyko zalania wnętrz podczas gwałtownych opadów, ochronią rozstawione na cały sezon wiosenno-letni meble ogrodowe, umożliwiając korzystanie z podestów mimo zmiennej pogody
W tej sytuacji sporego znaczenia nabierze wybór konkretnego typu stolarki. Zaproponowane w projekcie drzwi przesuwne (w rejonie jadalni i strefy wypoczynkowej salonu) to zapewne nieco droższe, ale też znacznie wygodniejsze rozwiązanie niż zwykłe drzwi balkonowe. Przesuwne skrzydła "schowają się" po otwarciu, nie zabierając cennego miejsca, tak że wędrowanie między domem i ogrodem może się odbywać bez jakichkolwiek utrudnień. Otwarcie tradycyjnych skrzydeł wiąże się z koniecznością obchodzenia ich, co w przypadku kompaktowych wnętrz prezentowanego domu stanowiłoby spory kłopot
Część dzienna domu nie jest ciasna, ale z uwagi na potrzebę podzielenia dostępnego na parterze miejsca między ludzi i auta spełnia jedynie podstawowe wymagania. Na pochwałę zasługuje porządna strefa wejściowa z dużym, widnym wiatrołapem, w którym zmieści się szafa garderobiana, a nawet krzesełko ułatwiające zmianę obuwia. Podobają mi się proste, jednobiegowe schody na piętro (i schowek pod nimi), wyspa kuchenna, a także sąsiadująca z kuchnią spiżarnia. Zastanawiam się natomiast nad komunikacyjną śluzą pomiędzy garażem i wiatrołapem - zewnętrzne, osłonięte przejście po drugiej stronie ściany będzie chyba wygodniejsze, a tym, których nęci perspektywa przechodzenia do samochodu w kapciach, polecam połączenie za pośrednictwem spiżarni - w moim odczuciu rozwiązanie znacznie praktyczniejsze
Duże pokoje sypialne na poddaszu zrekompensują domownikom ograniczoną ilość wspólnego miejsca na parterze. Pokój bez pionowego okna potraktowałabym jako zapasowy, przeznaczając go na miejsce do pracy i ewentualny gościnny. Pralnia na tym poziomie na pewno oszczędzi osobie prowadzącej dom wielu wysiłków związanych ze zbieraniem i przenoszeniem rzeczy przeznaczonych do prania, utrudni natomiast suszenie na powietrzu.
Jak wspomniałam na wstępie - niepokoi mnie brak drugiej, choćby niewielkiej łazienki obok pięciu pokojów. Zalecam przeanalizowanie tego układu - np. z architektem przygotowującym adaptację projektu. Może taki program znakomicie wpasuje się w rodzinne zwyczaje? A może drobna korekta dopasuje całość do nieco odmiennego od założeń projektowych stylu życia? Adaptacja to doskonały moment na nadanie gotowemu projektowi indywidualnego rysu!
- Więcej o:
![19811531 https bi]()
Pojedynek architektów: rezydencja w dobrym stylu [część 2]
![19810989 https bi]()
Pojedynek architektów: rezydencja w dobrym stylu [część 1]
![Projekt domu Home Koncept 23 projekt domu, projekty domów jednorodzinnych, projekt gotowy]()
Wybieramy projekty domów do 150 m2 [projekty gotowe, ceny]
![Projekt domu Flo III G1 z dużym tarasem i garażem w bryle. Powierzchnia użytkowa 112,72 m2, dodatkowo powierzchnia poddasza do adaptacji 35,91 m2. Oprócz salonu, na parterze są trzy sypialnie. Cena projektu 2600 zł projekt domu z poddaszem]()
Projekty domów. Poddasze do późniejszej adaptacji
![Dom w filodendronach projekty domów, dom jednorodzinny]()
Projekty domów tanich w budowie i eksploatacji [przegląd i głosowanie]
![Wśród tysięcy propozycji wydaje się, że największe znaczenie dla inwestorów ma estetyka budynku, funkcjonalny układ pomieszczeń oraz otoczenie nowego domu Wśród tysięcy propozycji wydaje się, że największe znaczenie dla inwestorów ma estetyka budynku, funkcjonalny układ pomieszczeń oraz otoczenie nowego domu]()
Wybierz swój najpiękniejszy dom
![Górnik The House nad Mitręgą Górnik The House nad Mitręgą]()
Górnik The House nad Mitręgą
![Dom dla dużej rodziny – przestrzeń, komfort i perspektywy na przyszłość Dom dla dużej rodziny – przestrzeń, komfort i perspektywy na przyszłość]()
Dom dla dużej rodziny – przestrzeń, komfort i perspektywy na przyszłość












