Pojedynek architektów: dom nowoczesny, ale z tradycjami [część 1]
Choć czasy się zmieniają, a z nimi nasz styl życia, wielu Polaków wciąż jest przywiązanych do wizerunku domu ze spadzistym dachem, o wyglądzie określanym jako "tradycyjny". Choć to wyobrażenie często nie ma związku z tradycjami budowlanymi w okolicy, to w przekonaniu wielu właśnie taki dom istnieje jako ten najbardziej "normalny", tym samym najlepiej realizujący wyobrażenie o własnym dachu nad głową. Właśnie dla takich osób szukali w tym miesiącu domu nasi eksperci.


Iwona Mere – ekspertka „Ładnego Domu”, architektka z dużą praktyką, związana z miesięcznikiem od 1998 roku – zaproponowała projekt „NEO”.
Metryka projektu
Powierzchnia użytkowa: 176,9 m² + garaż: 22,7 m2; pow. zabudowy: 195,0 m2; kubatura: 719,6 m³; wysokość budynku: 8,5 m; kąt nachylenia dachu: 45o; powierzchnia dachu: 112 m2; minimalne wymiary działki: 22,7 x 21,1 m; autorzy: Artur Wójciak, Robert Wójciak, Pracownia ARCHIPELAG; tel. 71 798 38 41; tel. kom: 660 457 989, www.archipelag.pl
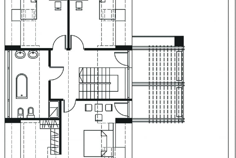
Dom jest przeznaczony dla typowej, czteroosobowej rodziny – rodziców i dwojga dzieci. Na parterze obok części dziennej i garażu zaplanowano dodatkowy pokój (gościnny/gabinet) oraz łazienkę z natryskiem. Strefa prywatna wypełnia poddasze – umieszczono tam główną sypialnię, pokoje dzieci, a także salonik kąpielowy pod lukarną. Druga doświetla hol i schody, a także otwiera dostęp do tarasu na dachu garażu; jedne drzwi prowadzą tam wprost z sypialni rodziców, drugie, z holu, będą służyć wszystkim domownikom, a nawet gościom (o ile mieszkańcy zechcą ich zaprosić na górną kondygnację). Ażurowa konstrukcja osłaniająca tę przestrzeń zagwarantuje użytkownikom ochronę przed słońcem i wzrokiem sąsiadów, słowem – „udomowi” to miejsce. Za wyjątkowo trafną decyzję uznaję ograniczenie tarasu do części płaskiego zadaszenia parterowego skrzydła budynku – cały ten obszar byłby zwyczajnie za duży, a przez to mało komfortowy.
Największe zalety projektu, czyli dlaczego polecam właśnie ten dom
- niewysoki budynek z użytkowym poddaszem wygląda tradycyjnie i łatwo wpasuje się w otoczenie;
- wyrazisty charakter zawdzięcza szczytom dwuspadowego dachu, dominującym w elewacji frontowej i ogrodowej;
- dopełnieniem wnętrz są podcienie przy wejściu i na tyłach garażu (takie otwarte, ale zadaszone obszary tworzą strefy buforowe, integrujące dom z otoczeniem);
- w parterowym, płasko nakrytym skrzydle zaplanowano część gospodarczą z garażem;
- taras na dachu garażu jest dostępny dla wszystkich domowników, osłonięty ażurowymi elementami pergoli opartej o komin i skalą dopasowany do wnętrz.
Działka – czyli w jakim otoczeniu najlepiej postawić dom wzniesiony według tego projektu
Plan budynku składa się z dwóch prostokątnych, zetkniętych ze sobą części: tej nakrytej stromym dachem i płaskiej, parterowej.Zabudowa ma wymiary 15,7 x 13,1 m.
Tradycyjny charakter dom zawdzięcza trójkątnym zwieńczeniom ścian szczytowych i stromym, nisko schodzącym połaciom dachu. Złożona bryła skrywa całkiem sporą kubaturę (prawie 720 m3). Nadwieszona nad strefą wejścia i wjazdu oraz po stronie ogrodu żelbetowa rama tworzy zadaszenia podcieni. Niezbyt wysokie (kalenica na poziomie 8, 5 m), rozłożyste domostwo nie wymaga wielkiej parceli – minimalne warunki spełni kawałek ziemi o powierzchni poniżej 500 m² i szerokości nieprzekraczającej 23 m. Nawet biorąc pod uwagę konieczność zapewnienia dodatkowego miejsca postojowego na podjeździe przed garażem i otwartej przestrzeni wokół ogrodowego tarasu, operujemy przyzwoitymi wartościami: 600 m2 oraz głębokości działki w granicach 25 m. Optymalną orientację głównych pomieszczeń zapewnimy sobie, wybierając teren z ulicą wzdłuż zacienionej, północnej krawędzi.
Wygląd budynku
Wygląd budynku i jego charakter był w tym miesiącu głównym kryterium wyboru. „Przywiązanie do tradycji” to szeroka i dość subiektywna formuła, na dodatek niezbyt mi bliska (bo jeśli nie używamy już krynoliny ani bicykla, czemu mielibyśmy marzyć o dworze z „Pana Tadeusza”. Żyjemy inaczej i. budujemy inaczej. Mam też szczerą nadzieję, że tak zwany dworek polski przetestowaliśmy w ostatnim ćwierćwieczu we wszystkich możliwych wariantach (nawet w zabudowie szeregowej) i... możemy mu już zwyczajnie odpuścić.
Jak zatem dziś zamieszkać „tradycyjnie”? Pod stromym, mocno nachylonym dachem – na pewno! Blisko ogrodu, nisko, rozłożyście. raczej nie w cieniu gigantycznego garażu. Wizytówkę domu w starym, dobrym stylu stanowi front z trójkątnym szczytem; symetrię delikatnie podkreśla centralnie umieszczony portfenetr, doświetlający główną sypialnię, chociaż cała fasada ma nowocześniejszą, bardziej modernistyczną strukturę. Otwory na poziomie parteru – od klasycznych okien w części mieszkalnej poprzez podcień wejściowy z drzwiami i bramą garażową – łączy elegancka kamienna okładzina, podkreślająca horyzontalny układ. Cała kubiczna część bryły zamknięta poziomą ramą stropodachu została wykończona w ten sposób. Przydaje on budynkowi elegancji, choć z pewnością wygeneruje spore koszty. Jeśli inwestorzy stanęliby przed koniecznością cięcia wydatków na wykończenie, polecam raczej zastąpienie płyt piaskowca innym, tańszym materiałem lub ciemniejszym kolorem tynku, a odradzam proste ograniczenie powierzchni (rozbije bryłę, wprowadzi bałagan). Bardzo atrakcyjnie zapowiada się przeszklona ogrodowa fasada: „wypukły” narożnik mieszczący jadalnię oraz „wklęsły” pomiędzy aneksem telewizyjnym i strefą kominkową – ogród wchodzący do wnętrz, domownicy wychodzący do ogrodu...
Podoba mi się szlachetna kolorystyka budynku: jasne, gładkie tynki, szara delikatna stolarka, grafitowe połacie dachu bez okapów, a także poziome podziały: dachówek (szczególnie widoczne przy płaskich dachówkach), żaluzji, balustrad itd.
Wnętrza i ich funkcje
Wnętrza domu odpowiadają współczesnym potrzebom, ale nie narzucają mieszkańcom żadnej konkretnej estetyki. Da się je wykończyć i wyposażyć zarówno w sposób tradycyjny, jak i w duchu modnego minimalizmu.
Wejście do domu umieszczono w sporej wnęce – funkcjonalnością w niczym nieustępującej tradycyjnemu gankowi, a przewyższającej go bezpieczną, ponadczasową urodą. Przedsionek o powierzchni ponad 4 m² mieści porządną szafę na okrycia, a żaden listonosz ani inkasent od progu nie zlustruje otwartej części dziennej. Pasaż komunikacyjny oddzielają od salonu schody na poddasze. Wybór ich konstrukcji i wykończenia będzie miał kluczowe znaczenie dla wnętrz. Cięższa, żelbetowa „klatka” obłożona drewnem ułatwi wygenerowanie solidnego, zachowawczego klimatu, natomiast lekkie, ażurowe schody będą sprzyjać nowocześniejszej „stylizacji”.
Niezamknięta, ale skutecznie wydzielona kuchnia, powinna powstać w oparciu o niską zabudowę meblową i dobrze, że uzupełnia ją niewielka, osobna spiżarnia. Jadalnię (na przedłużeniu kuchni) zaplanowano w przeszklonym, ogrodowym narożniku domu – nada jej to wyjątkowy, reprezentacyjny charakter. Za schodami (może nawet: w cieniu schodów) znalazł się obszar wypoczynkowy z dwoma istotnymi, niekonkurującymi ze sobą atrakcjami: kominkiem oraz telewizorem. Rozdzielone przeszkleniem i wyjściem na zadaszony fragment ogrodowego tarasu znajdują się na dwóch prostopadłych do siebie ścianach, co stanowi modelowe rozwiązanie wnętrzarskie.
Położony blisko wejścia do domu nieduży pokój (10,6 m²) z powodzeniem może służyć jako gabinet oraz pokój gościnny, zwłaszcza że sąsiaduje z łazienką o skromnym, ale pełnym programie (wyposażono ją w miskę w.c., umywalkę i natrysk).
Na poddaszu nisko schodzące połacie dachowe – które nadają domowi charakterystyczny, tradycyjny wygląd – mocno ograniczą funkcjonalność pokojów. Uprzedzam o tym lojalnie – wnętrza będą przytulne i „swojskie”, ale skosy nad głową – mało komfortowe.
Spora łazienka znalazła się w dużej, prostokątnej lukarnie. I choć nie każdą rodzinę zachwyci jedna (wspólna) łazienka dla rodziców i dzieci nie zalecam rozdzielania jej na dwa mniejsze pomieszczenia – tylko w takim kształcie zyskujemy tu trochę „oddechu”, którego ma prawo oczekiwać współczesny inwestor.
Zapisz się na NEWSLETTER. Co tydzień najnowsze wiadomości o budowie, remoncie i wykańczaniu wnętrz w Twojej poczcie e-mail. Zobacz PRZYKŁAD
- Więcej o:
![Projekt "Z339" Projekt "Z339"]()
Pojedynek architektów: z ogrodem zimowym [część 1]
![Projekt Lara 6 Projekt Lara 6]()
Pojedynek architektów: z ogrodem zimowym [część 2]
![Wygląd budynku Wygląd budynku]()
Pojedynek architektów: drewniane elewacje [część 1]
![Tytuł Dom z natury Tytuł Dom z natury]()
Dom z natury
![Dom w Jastrzębiej Górze od Archmondo Dom w Jastrzębiej Górze od Archmondo]()
Architektura spokoju. Dom w Jastrzębiej Górze od Archmondo
![Wśród tysięcy propozycji wydaje się, że największe znaczenie dla inwestorów ma estetyka budynku, funkcjonalny układ pomieszczeń oraz otoczenie nowego domu Wśród tysięcy propozycji wydaje się, że największe znaczenie dla inwestorów ma estetyka budynku, funkcjonalny układ pomieszczeń oraz otoczenie nowego domu]()
Wybierz swój najpiękniejszy dom
![Górnik The House nad Mitręgą Górnik The House nad Mitręgą]()
Górnik The House nad Mitręgą
![Dom dla dużej rodziny – przestrzeń, komfort i perspektywy na przyszłość Dom dla dużej rodziny – przestrzeń, komfort i perspektywy na przyszłość]()
Dom dla dużej rodziny – przestrzeń, komfort i perspektywy na przyszłość















