Pojedynek architektów: dom, który nigdy nie będzie za duży [część 2]
Szukamy projektu domu dla rodziców z małym dzieckiem, którzy, choć myślą perspektywicznie, chcą mieć możliwość wyłączenia części budynku z użytkowania.


Metryka projektu:
Powierzchnia użytkowa: 135,4 m kw.
Powierzchnia zabudowy: 134,2 m kw.
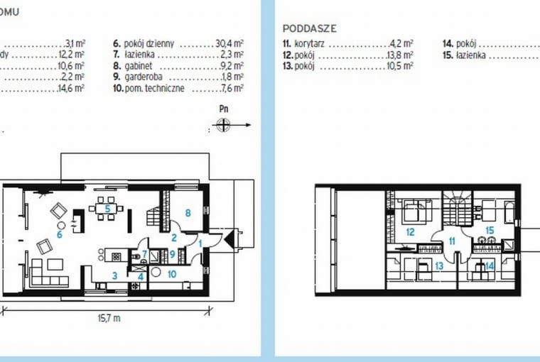
Wymiary budynku: 8,5 x 15,7 m; kubatura: 495,5 m3; wysokość budynku: 8,7 m
Minimalne wymiary działki: 16,6 x 23,7 m;
Kąt nachylenia dachu: 45 st.
Powierzchnia dachu: 168 m kw.
Autor projektu domu: architekt Artur Wójciak; kontakt: Pracownia Projektowa ARCHIPELAG; A. Wójciak, R. Wójciak; www.archipelag.pl; tel. 71 798 38 00, e-mail: biuro@archipelag.pl
Zobacz też projekt domu, wybrany przez architektkę Iwonę Mere
Zalety projektu domu
Największe zalety projektu, czyli dlaczego polecam właśnie ten dom:
Zwarta, prosta bryła, zapowiadająca oszczędną eksploatację (mała powierzchnia ścian oznacza bowiem zmniejszone straty ciepła);
Bardzo rozsądnie rozplanowane wnętrza;
Efektowny, dwukondygnacyjny pokój dzienny;
Dobry kontakt wnętrza z ogrodem.
Z sytuacją, kiedy część pomieszczeń w domu jest nieużywana, spotykamy się stosunkowo często. Może to być na przykład związane z wyjazdem części domowników na ferie zimowe. Wtedy aż się prosi, aby obniżyć temperaturę w nieużywanych pokojach do dyżurnych kilkunastu stopni. Niestety, nie w każdym domu da się to zrobić bez zmiany komfortu w sąsiadujących pomieszczeniach. Bo pokoje to system naczyń połączonych. Jeżeli w jednym znacznie obniżymy temperaturę, to wychłodzimy ścianę z sąsiadującym. A przez nią z kolei będzie uciekać ciepło z pokoju o wyższej temperaturze. Jak zatem zminimalizować te niedogodności? Prezentowany dom jest dobrym przykładem na to, że można sobie poradzić z różnicami temperatury w domu, którego część chcemy na jakiś czas wyłączyć z użytkowania. Cały sekret tkwi w odpowiednim układzie pomieszczeń oraz dobrej izolacji ścian.
Działka budowlana
W jakim otoczeniu najlepiej postawić dom wzniesiony według tego projektu? Najpierw kilka słów o samym domu. Mamy do czynienia z typowym, klasycznym domem jednorodzinnym z użytkowym poddaszem. Prosta bryła o wymiarach podstawy 8,6 m na 15,6 m jest przykryta równie prostym, dwuspadowym dachem. Minimalna działka potrzebna do postawienia domu ma wymiary 16,6 m na 26 m, czyli około 430 m kw.
Uwaga! To jest opcja bez garażu, bo prezentowany dom nie ma ani garażu wbudowanego, ani przewidzianego miejsca na wiatę postojową. Samochód przy domu stanąć gdzieś musi, jeżeli zatem chcemy zarezerwować na działce jedno zadaszone miejsce na auto, to powierzchnia parceli musi przekroczyć 500 m kw. A przy dwóch samochodach dojdzie pewnie do około 600 m kw. Zwracam uwagę, że usytuowanie garażu w sąsiedztwie domu może stwarzać problemy, jako że na obu bocznych elewacjach umieszczono dość duże okna. Nie ma go zatem gdzie przykleić, będzie musiał stanąć jako osobny, wolno stojący obiekt.
A wracając do okien - to największe przeszklenia znajdują się od strony pokoju dziennego (elewacja ogrodowa) i jadalni. I wydaje się, że ta część domu powinna być zwrócona na południe, ewentualnie południowy zachód. Jeżeli ktoś lubi dużo słońca we wnętrzu, rzecz jasna.
Realizacja budynku według projektu domu
Jaki będzie wygląd budynku, czyli jak może prezentować się dom wzniesiony według projektu Ex 14. Na zewnątrz dom wygląda bardzo efektownie. Na elewacjach użyto trzech materiałów: tynku, drewna i szarej blachy. Klasyczne zestawienie. I klasycznie się podoba. Jasny tynk jest w mniejszości. Pojawia się na elewacjach szczytowych. Głównie na spokojnej, wręcz ascetycznej elewacji wejściowej. Na której, oprócz czterech równo rozmieszczonych okien, pojawił się mocny akcent w postaci drewnianych drzwi i daleko wysuniętego, stalowego daszka. Elewacja ta wygląda jak cytat z zupełnie innego projektu. Różni się diametralnie od pozostałych trzech, gdzie dominują cieplejsze materiały wykończeniowe. Na pozostałych ścianach przeważa drewno w postaci pionowego szalunku oraz żaluzji. Na bocznych ścianach przesuwne żaluzje chronią wnętrza przed przegrzaniem i służą jako zewnętrzne zasłony. Żaluzje pojawiają się również na elewacji ogrodowej w górnym pasie okien pokoju dziennego. Tu również pełnią funkcję ochrony przed słońcem, bo w słoneczny dzień duża, przeszklona elewacja może zamienić wnętrze domu w szklarnię. Drewniane żaluzje mają też wpływ na wygląd domu. Drewniana delikatna pajęczyna poziomych listew dodaje lekkości elewacjom. Całości dopełnia blaszany dach wykonany z arkuszy płaskiej blachy łączonej na rąbek stojący. Warto zwrócić uwagę na elewację ogrodową, na której wysunięte boczne ściany i dach tworzą osłonę tarasu i wnętrza przed wiatrem i słońcem. Praktyczne i efektowne rozwiązanie.
Wnętrza i ich funkcje
Wnętrze domu jest bardzo sprawnie zagospodarowane. Na około 140 m kw. znajdzie się miejsce dla czterech lub pięciu osób. Parter jest nieco większy od góry z dwóch powodów. Po pierwsze - skosy dachu bezlitośnie obcinają powierzchnię piętra. Po drugie - nad pokojem dziennym znajduje się pustka. Efektowna pustka zresztą, bo rzęsiście oświetlona wysokimi oknami pokoju dziennego. Na parterze, oprócz przestronnej części dziennej, znajduje się dodatkowy pokój, który może służyć jako miejsce do pracy lub sypialnia dla piątego mieszkańca. Na piętrze z kolei zaplanowano trzy sypialnie i w pełni wyposażoną łazienkę.
I teraz możemy wrócić do rozważań ze wstępu niniejszego tekstu. W domu mamy dwie strefy, które można bez szkody dla reszty domu wyłączyć z eksploatacji. Na parterze to pokój przy holu wejściowym, na piętrze sąsiadujące ze sobą dwie sypialnie dzieci. Zamknięcie na stałe któregokolwiek z tych pomieszczeń nie wpłynie na funkcjonowanie domu. Znajdują się bowiem na obrzeżach domu, a nie w jego centrum. Dlatego też powierzchnia styku tych pokoi z resztą budynku jest minimalna i ogranicza się do dwóch ścian i stropu. I tu warto zwrócić uwagę na następną istotną cechę każdego z tych pomieszczeń w kontekście strat ciepła. Mianowicie część ścian każdego z nich ma naturalną izolację cieplną w postaci szaf wnękowych. Szafa z ubraniami jest dobrym izolatorem, bo więzi sporo powietrza. Tym samym - będzie spowalniać przenikanie ciepła do sąsiedniego pomieszczenia. A jak widać na planie, każde z wymienionych wnętrz ma praktycznie jedną ścianę wypełnioną szafą. Sypialnie dzieci izolowane są szafą od łazienki i sypialni rodziców, pokój na parterze - szafą od jadalni. Oczywiście temat oszczędności związanych z ogrzewaniem i sposobami wyłączania pomieszczeń z eksploatacji jest bardzo szeroki, ale na pewno prezentowany dom nadaje się do tego typu działań.
Zapisz się na NEWSLETTER. Co tydzień najnowsze wiadomości o budowie, remoncie i wykańczaniu wnętrz w Twojej poczcie e-mail: Zobacz przykład
>- Więcej o:
![Dom wybudowany według projektu Doskonały ma klasyczny dwuspadowy dach, ale asymetryczny - co sprawia, że nabiera nowoczesnego charakteru dom nowoczesny, huśtawka, duże przeszklenia, komin, lukarna]()
Projekty domów: nowoczesny dom w dobrej cenie
![Dom wyróżnia się przede wszystkim dużymi płaszczyznami blachy cynkowo-tytanowej, którą pokryte są dach i ściany poddasza dach, blacha cynkowo-tytanowa, pokrycie dachu]()
Pojedynek architektów: dom z ciekawym wnętrzem [część 1]
![Tytuł Dom z natury Tytuł Dom z natury]()
Dom z natury
![Dom w Jastrzębiej Górze od Archmondo Dom w Jastrzębiej Górze od Archmondo]()
Architektura spokoju. Dom w Jastrzębiej Górze od Archmondo
![Wśród tysięcy propozycji wydaje się, że największe znaczenie dla inwestorów ma estetyka budynku, funkcjonalny układ pomieszczeń oraz otoczenie nowego domu Wśród tysięcy propozycji wydaje się, że największe znaczenie dla inwestorów ma estetyka budynku, funkcjonalny układ pomieszczeń oraz otoczenie nowego domu]()
Wybierz swój najpiękniejszy dom
![Górnik The House nad Mitręgą Górnik The House nad Mitręgą]()
Górnik The House nad Mitręgą
![Dom dla dużej rodziny – przestrzeń, komfort i perspektywy na przyszłość Dom dla dużej rodziny – przestrzeń, komfort i perspektywy na przyszłość]()
Dom dla dużej rodziny – przestrzeń, komfort i perspektywy na przyszłość
![Dom nad jeziorem Dom nad jeziorem]()
Dom nad jeziorem













