Architekci: willa Krakowiaków zachodnich
Oto współczesna wersja posiadłości poza miastem. Zastosowane tu zostały nowoczesne środki architektonicznego wyrazu i wykorzystane wspaniałe możliwości, które daje współczesna technika. Mimo to projekt nie jest kalką stylu międzynarodowego. Jest natomiast twórczym nawiązaniem do tradycyjnego podkrakowskiego budownictwa.


Dla kogo
To propozycja dla osób ceniących naszą tradycję budowlaną, zwłaszcza z rejonu krakowskiego, ale w wydaniu stosownym do współczesnej estetyki. Może tu zamieszkać rodzina z większą liczbą dzieci. Są też pokoje dla gości bądź opiekunki.
Działka
Usytuowanie willi na wzniesieniu (nawet niewielkim) pozwoli najlepiej wykorzystać walory krajobrazowe otoczenia. Działka powinna mieć wymiary przynajmniej 33 x 30 m.
Wizualizacje: Biuro architektoniczne Barycz i Saramowicz
Kształt domu
Forma architektoniczna domu jest współczesną interpretacją budownictwa ludowego Krakowiaków Zachodnich, wg klasyfikacji Oskara Kolberga mieszkających na zachód od Krakowa po obu stronach Wisły. Podstawowe cechy budownictwa tego regionu to: konstrukcje zrębowe, ściany z zewnątrz myte, szpary bielone wapnem, dach dwu- spadowy lub czterospadowy kryty strzechą. W prezentowanym budynku zastosowano dwuspadowy dach pokryty strzechą trzcinową oraz beton licowy, w którym odciśnięto rysunek drewnianych bali.
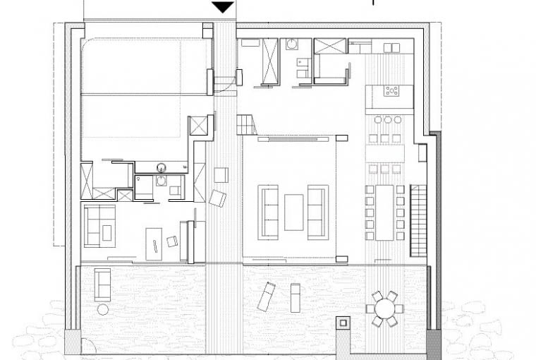
Plan
Przy głównym wejściu do budynku zaprojektowano strefę wejścia, z hallem głównym, wokół którego ulokowano garderobę na okrycia wierzchnie oraz łazienkę dzienną. W hallu zaakcentowane zostały schody, pomyślane jako rzeźba przestrzenna - mają być ozdobą wnętrza, a jednocześnie stanowić granicę funkcjonalną.
Wizualizacje: Biuro architektoniczne Barycz i Saramowicz
W strefie pobytu dziennego ciąg funkcjonalny obejmuje obszerną kuchnię, aneks śniadaniowy i dużą jadalnię. Ma ona przestrzenną kontynuację w znajdującej się pod gołym niebem jadalni letniej. Przestrzenie te można łączyć, gdyż usytuowano tam drzwi rozsuwane wysokości pełnej kondygnacji. Do kuchni przylega spiżarnia. Jednoprzestrzenna strefa pobytu dziennego obejmuje pokój dzienny i aneks kominkowy. Jest to główne dzienne pomieszczenie w domu. Osobną podstrefę tworzy gabinet z własną łazienką i garderobą, który może zostać także wykorzystany jako mieszkanie gościnne. Jego usytuowanie ma umożliwić niezależne funkcjonowanie tej części domu. Z hallu wejściowego prowadzi bezpośrednie przejście do garażu. Z garażem zintegrowany jest magazyn do przechowywania sprzętu sportowego.
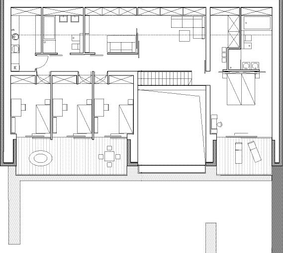
Strefę prywatną domowników zlokalizowano na piętrze budynku, osobno dla rodziców, oddzielnie dla dzieci. Jej rdzeniem jest przestrzeń wspólna o funkcji bawialni, zlokalizowana pomiędzy sypialnią rodziców a pokojami dzieci. Została ona usytuowana na galerii. Część bawialni, zaopatrzona w ściankę przesuwną, może zostać oddzielona i stać się np. pokojem dla opiekunki. Sypialni rodziców towarzyszy pokój kąpielowy oraz garderoba. Ta strefa funkcjonalna ma własny taras widokowy.
Po przeciwnej stronie usytuowane zostały trzy duże pokoje dziecięce. W każdej sypialni wydzielono kącik do nauki oraz zaprojektowano wbudowaną garderobę. Dzieci mają własny taras. Do sypialni przylega niezależna łazienka dziecięca, obok niej wydzielono pomieszczenie towarzyszące, o zasadniczej funkcji pralni z suszarnią. Tu przewiduje się też instalację kotła centralnego ogrzewania i centralnej ciepłej wody.
Wizualizacje: Biuro architektoniczne Barycz i Saramowicz
Willa posiada odrębną strefę rekreacyjną, która została usytuowana w niskim parterze, na poziomie -1. Składa się na nią duże pomieszczenie wypoczynkowo-rekreacyjne. Obok znajduje się zespół odnowy biologicznej, z sauną, umywalnią, ustępem i niewielką szatnią. Strefa rekreacyjna ma własny taras wypoczynkowy. Na poziomie -1 zostało zaplanowane także pomieszczenie gospodarcze, z zewnętrznym wejściem, gdzie przechowywać można narzędzia ogrodowe.
Na zewnątrz
Ściany pokryte zostały betonem architektonicznym, w którym odbity jest rysunek deskowania szalunku. Tym sposobem materiał, choć nowoczesny, przybliża budynek do tradycji. Jako materiał pokrycia dachu, jak i częściowo jako budulec elewacyjny, użyta jest strzecha. To jedno z pokryć najbardziej współgrających z krajobrazem.
Willa obsypana jest rumoszem skalnym, co jeszcze mocniej wiąże ją z naturą.
Wewnątrz
Wnętrza willi zostały skomponowane na zasadzie otwartych planów. Zapewniono liczne sekwencje panoramiczne. Dom jest przy tym jasny, dobrze doświetlony. Ogromne przesuwne okna pozwalają w słoneczne dni na pełne otwarcie wnętrz budynku na przestrzeń i naturę. Obszerne przeszklenie wysokości pełnej kondygnacji pozwala cieszyć oczy widokiem na niezwykły krajobraz, a także otworzyć tę część domu w letnie dni, scalając ją z obszernym tarasem widokowym.
Dekoracja została zredukowana do niezbędnego minimum i sprowadza się do użycia tożsamych materiałów, jak na elewacji. Mamy tu zatem beton licowy, mur łamany warstwowo, jednorodne posadzki. Jako paralelę strzechy wprowadzono, w umiarkowanym zakresie, wiór osikowy.
Z czego budować
Willa zaprojektowana została w technologii tradycyjnej, mieszanej, murowano-żelbetowej. Posadowiona jest bezpośrednio na płycie fundamentowej. Jako warstwy nośnej murów zewnętrznych użyto pustaków ceramicznych do ścian jednowarstwowych, na zaprawie termoizolacyjnej. Stropy międzykondygnacyjne są płytowe, żelbetowe. Dwuspadowy dach wykonany jest w konstrukcji drewnianej z elementami ze stali profilowej. Hydroizolacje wykonano z dwóch warstw papy termozgrzewalnej i specjalnej membrany powłokowej, a termoizolacje z użyciem twardego styropianu.
AUTORZY PROJEKTU:
dr Rafał Barycz, dr Paweł Saramowicz, z zespołem firmy Biuro Architektoniczne Barycz i Saramowicz
ADRES PRACOWNI:
Kraków, ul. Królowej Jadwigi 320, www.barycz-saramowicz.pl, biuro@barycz-saramowicz.pl
Powierzchnia użytkowa: 380 m˛
SZACUNKOWY KOSZT INWESTYCJI: 1,5 mln zł
- Więcej o:
- architekci
- architektura












