Projekt domu z biurem coraz bardziej popularny
Oferta projektów katalogowych z miejscem do pracy jest bardzo bogata. Prezentujemy projekty tematycznie, aby ułatwić wybór tego jednego, wymarzonego.

Projekt domu z biurem - Narcyz 3 z użytkowym poddaszem 125,5 m2
Tradycyjną formę budynku z dwuspadowym dachem połączono ze współczesnymi rozwiązaniami funkcjonalnymi i materiałowymi. Do głównej bryły przylega część garażowa z poddaszem. Symetryczną elewację frontową urozmaicono podcieniem wejściowymi i szeroką lukarną. Parter to połączona przestrzeń salonu, holu i kuchni, dwa dodatkowe pokoje mogące być pomieszczeniami do pracy, a także łazienka, garaż i kotłownia. Lokalizacja kotłowni pozwala na instalację kotła gazowego, pompy ciepła lub kotła na paliwo stałe. Na poddaszu są cztery pokoje i dwie łazienki. Pokój nad garażem ma własną łazienkę. Dom o zwartej prostej bryle nie jest trudny w budowie, a nowoczesne rozwiązania instalacyjne i bardzo dobre izolacje sprawiają, że jest budynkiem energooszczędnym i tanim w utrzymaniu.
Technologia
- ściany zewnętrzne: beton komórkowy 24 cm + styropian 20 cm,
- strop: gęstożebrowy typu Teriva,
- dach: kąt nachylenia 40°, kryty dachówką.
Parametry domu
- powierzchnia użytkowa 125,6 m2 +
- garaż i kotłownia 23,2 m2
- powierzchnia zabudowy 123,2 m2
- kubatura brutto 695 m3
- wysokość budynku 8,25 m
- wymiary budynku 13,10 × 10,88 m
- minimalna szerokość działki 21,10 m
- zapotrzebowanie na energię: EP = 64,60 kWh/(m2 rok) EUco = 30,20 kWh/(m2 rok)
Autor projektu: arch. Michał Gąsiorowski, MG Projekt
Cena projektu 4590 zł
Koszt netto stanu surowego zamkniętego 190 000 zł
Projekt domu z biurem na parterze - dom z częścią usługowa i użytkowym poddaszem 132,5 m2
Projekt domu z częścią usługową, którą można aranżować według potrzeb np. na niewielki sklep czy salon kosmetyczny. Bryła domu składa się z trzech części. Centralna bryła, stanowiąca mieszkanie, przekryta jest dachem dwuspadowym, a części usługowa i garażowa to parterowe przyległe bryły z płaskim dachem. W części mieszkalnej widać klarowny podział na strefę dzienną na parterze i nocną na poddaszu. Dzięki otwarciu przestrzeni holu, salonu i jadalni wnętrze wydaje się optycznie większe. Parter mieści też pralnię z wejściem z przedsionka oraz garaż, dostępny z kuchni przez pomieszczenie gospodarcze. Poddasze to trzy przytulne sypialnie i duża łazienka. Niskie koszty eksploatacji budynku zapewnią zaprojektowane izolacje termiczne oraz system wentylacji z odzyskiem ciepła (rekuperacja).
Technologia
- ściany zewnętrzne: pustak ceramiczny 25 cm + styropian 25 cm,
- strop: żelbetowy, monolityczny,
- dach: kąt nachylenia 42°, kryty dachówką ceramiczną.
Parametry domu
- powierzchnia użytkowa 132,5 m2
- powierzchnia zabudowy 160,7 m2
- kubatura brutto 767 m3
- wysokość budynku 8,48 m
- wymiary budynku 14,25 x 15,75 m
- minimalna szerokość działki 20,35 m
- zapotrzebowanie na energię: EP = 31,11 kWh/(m2 rok) EUco = 9,03 kWh/(m2 rok)
Autor projektu: arch. Jarosław Charkiewicz, Domowe Klimaty
Cena projektu 3350 zł
Koszt netto stanu surowego zamkniętego 274 700 zł

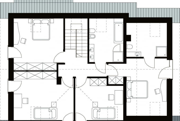
Projekt domu z biurem na parterze - dom w Jabłonkach 14 z użytkowym poddaszem 149,7 m2
Ciekawy projekt domu z poddaszem użytkowym. Zwarta, prosta bryła oraz dwuspadowy dach korzystnie wpłyną na koszty oraz czas realizacji. Charakter budynku podkreślają przeszklenia oraz naturalne okładziny. Zaakcentowany drewnem frontowy podcień osłania wejście, które prowadzi przez wiatrołap do strefy dziennej – salonu z wyjściem na częściowo zadaszony taras, jadalni i kuchni ze spiżarnią. Parter mieści ponadto: gabinet, łazienkę oraz pomieszczenie gospodarcze i kotłownię, przystosowaną do ogrzewania paliwem stałym. Poddasze to trzy jasne sypialnie, jedna z własną garderobą, duża łazienka oraz pralnia.
Technologia
- ściany zewnętrzne: pustak ceramiczny 25 cm + styropian 20 cm,
- strop: płyta żelbetowa,
- dach: kąt nachylenia 40°, kryty dachówką ceramiczną.
Parametry domu
- powierzchnia użytkowa 149,7 m² + kotłownia 5,2 m²
- powierzchnia zabudowy 110,1 m²
- kubatura brutto 795 m³
- wysokość budynku 9,12 m
- wymiary budynku 11,50 × 9,50 m
- minimalne wymiary działki 19,50 m
- zapotrzebowanie na energię: EP = 68,74 kWh/(m²rok) EUco = 23,31 kWh/(m2 rok)
Autorzy projektu: Zespół Projektowy ARCHON+
Cena projektu 3560 zł
Koszt netto stanu surowego zamkniętego 230 400 zł

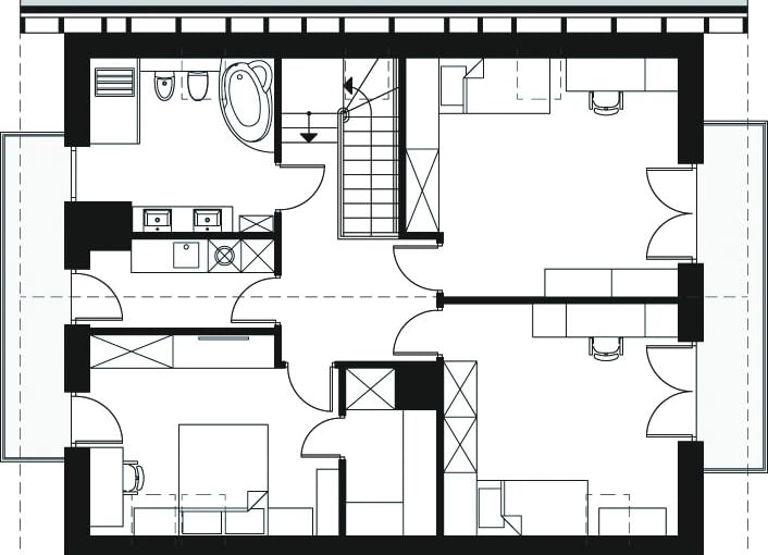
Projekt domu z biurem na piętrze - E-231 z użytkowym poddaszem 204,9 m2
Jest to projekt rozległego domu parterowego, przykrytego symetrycznym czterospadowym dachem. Wszystkie funkcje mieszkalne zgromadzono na parterze, zaś poddasze zajęto przez pracownię. Parter ma wyraźny podział na strefy funkcjonalne. Strefa dzienna obejmuje salon z jadalnią oraz kuchnię, która jest niezależnym pomieszczeniem, łączącym się z salonem i jednocześnie z wygodnym dostępem z holu. W bryłę wbudowano garaż na dwa samochody. Strefę prywatną wyraźnie oddzielono drzwiami. Z holu tej części dostępne są trzy sypialnie, łazienka oraz wspólna garderoba. Całe poddasze przeznaczono na pracownię. Jest tu miejsce na kilka stanowisk pracy, stół konferencyjny, dodatkowy pokój np. odpoczynku lub spotkań, kuchnię i łazienkę.
Technologia
- ściany zewnętrzne: pustak ceramiczny 25 cm + styropian 18 cm,
- strop: żelbetowy, wylewany,
- dach: kąt nachylenia 30°, kryty dachówką cementową.
Parametry domu
- powierzchnia użytkowa 204,9 m²
- + garaż i kotłownia 41,2 m2
- powierzchnia zabudowy 234,4 m²
- kubatura brutto 826 m³
- wysokość budynku 8,57 m
- wymiary budynku 15,31 × 15,31 m
- minimalna szerokość działki 23,31 m
- zapotrzebowanie na energię: EP = 64,90 kWh/(m2 rok) EUco = 35,00 kWh/(m2 rok)
Autor projektu: arch. Mariusz Cendecki, e-domy.pl
Cena projektu 4900 zł
Koszt netto stanu surowego zamkniętego 341 500 zł

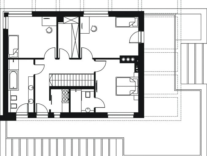
Projekt domu parterowego z biurem. - HomeKONCEPT -37 piętrowy186,6 m2
Nowoczesną bryłę urozmaicono ciekawym belkowaniem okalającym budynek oraz kamieniem na elewacji. Funkcjonalne wnętrze doświetlają duże okna. Parter to przestronna strefa dzienna oraz gabinet i łazienka. Piętro mieści trzy sypialnie, dużą łazienkę i garderobę.
Technologia
- ściany zewnętrzne: pustak ceramiczny 25 cm + wełna mineralna 18 cm,
- strop: żelbetowy, wylewany,
- dach: kąt nachylenia 30°, kryty blachą tytanowo-cynkową.
Parametry
- powierzchnia użytkowa 186,6 m2 + garaż 41,7 m2
- powierzchnia zabudowy 183,0 m2
- kubatura brutto 1091 m3
- wysokość budynku 9,09 m
- wymiary budynku 18,00 × 15,25 m
- minimalna szerokość działki 25,68 m
- zapotrzebowanie na energię: EP = 67,25 kWh/(m2 rok) EUco = 16,08 kWh/(m2 rok)
Autorzy projektu: Zespół Projektowy HomeKONCEPT
Cena projektu 5600 zł
Koszt netto stanu surowego zamkniętego 363 200 zł

Otwarty 2 piętrowy 221,4 m2
Energooszczędny piętrowy dom z płaskim dachem, o nowoczesnej formie z przenikającymi się płaszczyznami przeszkleń i drewna elewacyjnego. To przestronna rezydencja z bogatym programem funkcjonalnym. Parter ma wyraźny podział na część gospodarczą, usługową i mieszkalną. W tej pierwszej jest kotłownia oraz ponadwymiarowy dwustanowiskowy garaż, w którym zmieszczą się też: motocykl, rowery oraz akcesoria ogrodnicze. Obok jest gabinet z niezależnym wejściem oraz własną łazienką i poczekalnią. Część mieszkalna parteru zajmuje otwarta strefa dzienna z bardzo dużą kuchnią, salonem i wysoką jadalnią z narożnym przeszkleniem. Piętro to sypialnia główna z prywatną łazienką i garderobą oraz wyjściem na taras, trzy pokoje dzieci, łazienka oraz pralnia.
Technologia
- ściany zewnętrzne: bloczek silikatowy 24 cm + styropian 18 cm,
- strop: żelbetowy, wylewany,
- dach: płaski, kryty membraną dachową.
Parametry domu
- powierzchnia użytkowa 221,4 m2
- + garaż i kotłownia 48,5 m2
- powierzchnia zabudowy 219,2 m2
- kubatura brutto 1354 m3
- wysokość budynku 7,42 m
- wymiary budynku 21,03 × 16,25 m
- minimalna szerokość działki 28,03 m
- zapotrzebowanie na energię: EP = 68,30 kWh/(m²rok) EUco = 25,60 kWh/(m²rok)
Autorzy projektu: arch. Krzysztof Borowski, arch. Piotr Rynkiewicz, Domy z Wizją
Cena projektu 6400 zł
Koszt netto stanu surowego zamkniętego 467 700 zł

- Więcej o:
![Dom parterowy Dom parterowy]()
Domy parterowe - jedna kondygnacja, wiele zalet
![Dom z poddaszem do adaptacji pozwala nam na prowadzenie inwestycji zgodnie z naszymi bieżącymi potrzebami. Możemy najpierw wykończyć tylko parter i mieszkać w takim budynku nawet przez kilka lat, a dopiero później, kiedy zmienią się nasze potrzeby, zdecydować się na przeprowadzenie adaptacji poddasza Dom z poddaszem do adaptacji pozwala nam na prowadzenie inwestycji zgodnie z naszymi bieżącymi potrzebami. Możemy najpierw wykończyć tylko parter i mieszkać w takim budynku nawet przez kilka lat, a dopiero później, kiedy zmienią się nasze potrzeby, zdecydować się na przeprowadzenie adaptacji poddasza]()
Domy z poddaszem do adaptacji – komu warto je polecić?
![Dom na wąską działkę Dom na wąską działkę]()
Czy warto kupić wąską działkę?
![Domy na wąską działkę: Wąski – parterowy 137,2 m2 Projekty domów na wąską działkę]()
Projekty domów na wąską działkę wybrane przez architektów
![Projekty domów na wsi. Duży, nowoczesny dom na wsi Duży, nowoczesny dom na wsi]()
Projekty domów na wieś - nasze propozycje
![Projekty domów z poddaszem do adaptacji Projekty domów z poddaszem do adaptacji]()
Projekty domów z poddaszem do adaptacji
![TORONI B projekt domu do 120 m2 katalog projektów projekty domów dom do 120 m2]()
Najciekawsze projekty domów do 120 m2 - propozycje od architektów
![Projekty z okładziną na elewacji Projekty z okładziną na elewacji]()
Projekty domów z okładziną na elewacji




























